$680,000
Enquire

2

2

1
070/11 Resort Road, Kew 2439
Mid North Coast, NSW
$680,000
Enclosed Sunroom
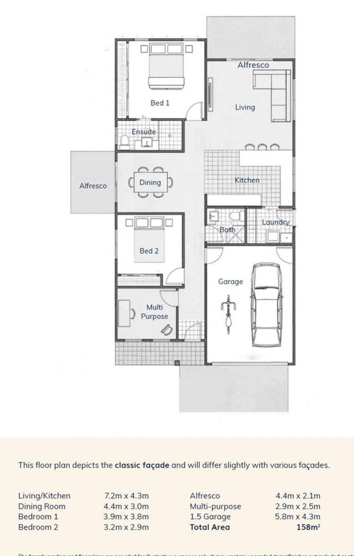
This functional home offers a rear master bedroom suite that caters for maximum privacy. Features include ample space, a modern kitchen design enclosed sunroom and the ever popular one and a half garage for a single vehicle plus additional storage. The vendor hasn't had an electricity bill for quite some time with the 31 solar panels.
2 Air conditioners
Solar panels
Garden shed
Established rear garden
2 Air conditioners
Solar panels
Garden shed
Established rear garden
Features
- Retirement Village
- Retirement Property
- New property alerts
- Save searches & properties
- Newsletter
- My property value
Join the new member centre
