$715,000
The George Retirement Living
Aveo The George George Street, Sandringham 3191
Inner South Melbourne, VIC
$715,000
2
1
1
307/15-25 George Street Sandringham, VIC 3191
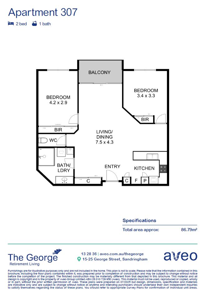
Light, bright & spacious two-bedroom apartment
Retirement living at its best!
Enjoy a little extra space in Apartment 307 at The George. This uniquely designed two-bedroom apartment features spacious open-plan living, and a modern kitchen with stainless steel appliances and stone benchtops. It has a large bathroom with ample storage and European laundry. The private balcony provides a lovely area for relaxing and enjoying the delightful afternoon sunshine.
Property Features:
- Recently refurbished
- Air-conditioning and heating
- 2 bedrooms
- Fully renovated kitchen
- Stone benchtops
- Private balcony
- Freshly painted
- New carpet throughout
- European laundry
Community features:
- Library
- Social groups
- Gym
- Hairdresser
- Community bus
- Community Manager
- Pet friendly (subject to approval)
- 24/7 Emergency call system
About The George Retirement Living:
Located in the beachside suburb of Sandringham, just nearby Westfield Southland, cafes and restaurants, The George Retirement Living offers independent living.
Enquire today to find out more about living at The George. Our friendly sales team will be happy to meet with you, take you on a tour of the community and answer any questions you may have.
About Aveo Retirement Villages:
For over 30 years, Aveo has been dedicated to delivering the best retirement living options for Australians. Whether you're looking for a low-maintenance lifestyle in a vibrant and social community or perhaps a community offering a little more support, we're here to help you find the right fit.
Payment Options Available:
This property comes with three payment options. Take your choice of the Now, Later or Bond payment options.
Disclaimer: Images are of a similar unit, for illustrative purposes only. Furnishings are not included. The buyer must also enter into a separate contract with the retirement village.
Property Features
Features
- Garage or Parking Space
- Pets Allowed
- Lift Access
- Retirement Village
Facilities
- Recreation Centre / Clubhouse
- Cafe or Restaurant
- Gated Complex
- Lounge
Supports
- Independent Living
- Community Bus
- Personal Care Services
- 24 Hour Emergency Call
Locations
- Medical Services Nearby
- Close to Transport
- Clubs Nearby
- Close to Shops
Property Location
Explore the neighborhood and see what's nearby
- New property alerts
- Save searches & properties
- Newsletter
- My property value
Join the new member centre