$529,000
Enquire
2
1
1
142/2 Rochester Parade, Cranbourne East 3977 South East Melbourne, VIC
$529,000
Discover serene living in this fully upgraded two-bedroom villa
Retirement living at its best!
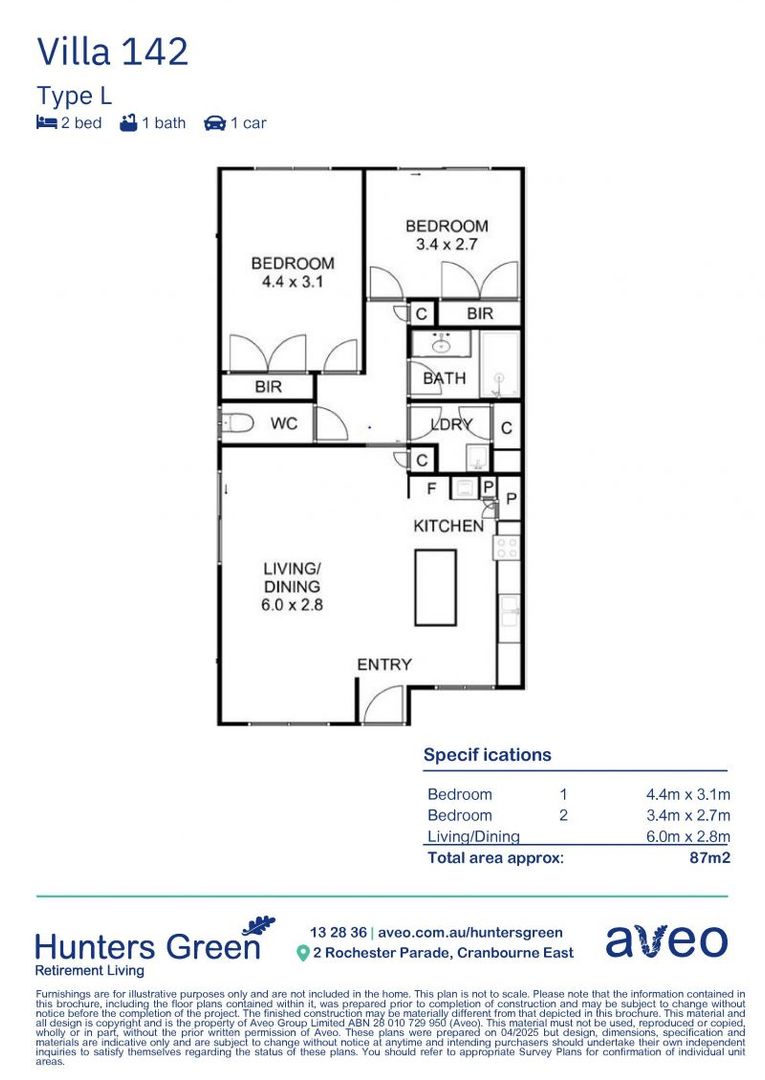
This two-bedroom villa is perfect for retirement, featuring abundant natural light and a neutral colour scheme.
The spacious living area connects to a private backyard, and both bedrooms have built-in wardrobes. The open plan kitchen includes quality appliances, ducted heating and cooling, ensuring comfort year-round.
The villa is located in a court position and is a short walk to the community centre.
Property Features:
- 2-bedroom villa
- Spacious kitchen with quality appliances
- Private courtyard garden
- Ducted heating & cooling
- Garage with remote control
- Short distance to community centre
Community features:
- Activity rooms
- Arts & crafts room
- Billiards table
- Bowling green
- Community vegetable garden
- Consultation rooms
- Gymnasium
- Hair salon
- Indoor heated pool
- Library & computer room
- Resident-run bar
About Hunters Green Retirement Village:
Nestled in the heart of Cranbourne East is Hunters Green, a social and vibrant retirement community that offers city convenience and relaxed, country charm. Located near some of Victoria's most stunning and picturesque destinations, including the sandy shores of the Mornington Peninsula and the natural greenery of the Dandenong Ranges, Hunters Green is your gateway to easy retirement living.
Give us a call to find out more information and inspect today!
About Aveo Retirement Villages:
For over 30 years, Aveo has been dedicated to delivering the best retirement living options for Australians. Whether you're looking for a low-maintenance lifestyle in a vibrant and social community or perhaps a community offering a little more support, we're here to help you find the right fit.
Payment Options Available:
This property comes with three payment options. Take your choice of the Now, Later or Bond payment options. Buyer must enter into separate contract with retirement village.
Disclaimer: Furnishings are for illustrative purposes only and are not included in the unit.
(village-id-70)
This two-bedroom villa is perfect for retirement, featuring abundant natural light and a neutral colour scheme.
The spacious living area connects to a private backyard, and both bedrooms have built-in wardrobes. The open plan kitchen includes quality appliances, ducted heating and cooling, ensuring comfort year-round.
The villa is located in a court position and is a short walk to the community centre.
Property Features:
- 2-bedroom villa
- Spacious kitchen with quality appliances
- Private courtyard garden
- Ducted heating & cooling
- Garage with remote control
- Short distance to community centre
Community features:
- Activity rooms
- Arts & crafts room
- Billiards table
- Bowling green
- Community vegetable garden
- Consultation rooms
- Gymnasium
- Hair salon
- Indoor heated pool
- Library & computer room
- Resident-run bar
About Hunters Green Retirement Village:
Nestled in the heart of Cranbourne East is Hunters Green, a social and vibrant retirement community that offers city convenience and relaxed, country charm. Located near some of Victoria's most stunning and picturesque destinations, including the sandy shores of the Mornington Peninsula and the natural greenery of the Dandenong Ranges, Hunters Green is your gateway to easy retirement living.
Give us a call to find out more information and inspect today!
About Aveo Retirement Villages:
For over 30 years, Aveo has been dedicated to delivering the best retirement living options for Australians. Whether you're looking for a low-maintenance lifestyle in a vibrant and social community or perhaps a community offering a little more support, we're here to help you find the right fit.
Payment Options Available:
This property comes with three payment options. Take your choice of the Now, Later or Bond payment options. Buyer must enter into separate contract with retirement village.
Disclaimer: Furnishings are for illustrative purposes only and are not included in the unit.
(village-id-70)
Property Features
Features
- Retirement Village
- Air Conditioning
- Dishwasher
- Retirement Property
Locations
- Close to Shops
Other
- Remote Garage
- Ducted Heating
Property Location
Explore the neighborhood and see what's nearby
- New property alerts
- Save searches & properties
- Newsletter
- My property value
Join the new member centre