Kooringa Close Retirement Village
$365,000

1

1

1
$365,000
Retire in style, Kooringa Close Retirement Village
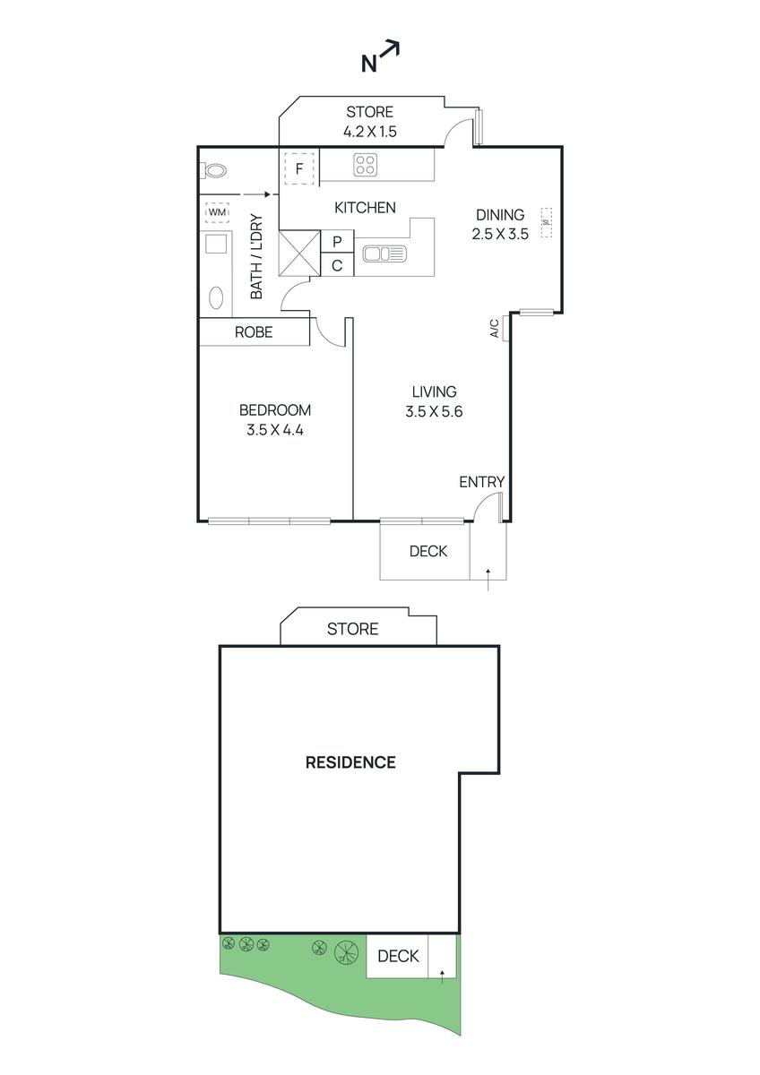
Make the move to Kooringa Close Retirement Village and experience firsthand the warm welcome and peace of mind that comes from living in a community exclusively for senior residents aged 55 and over. Light, bright and a cheerful interior, this spacious and comfortable residence enjoys a practical single level design complete with a generous bedroom, bathroom and laundry, functional kitchen and inviting lounge/dining room.
Situated opposite the community centre, this unit is considered one of the best locations withing the village. Other highlights include a carport, front terrace, split system heating/cooling, village manager, residents lounge and 24-hour emergency call system. Beautifully presented and positioned for easy to Eltham village shopping and transport, this is a prime opportunity to secure an independent and hassle-free lifestyle plus a little bit extra.
Features
- Air Conditioning
- Retirement Property
Facilities
- Lounge
Supports
- 24 Hour Emergency Call
- Concierge/Manager
Locations
- Close to Transport
- Close to Shops
- New property alerts
- Save searches & properties
- Newsletter
- My property value
Join the new member centre
