$940,000
Enquire
2
2
2
81/4495 - 449 Nelson Bay Road, Anna Bay 2316 Port Stephens, NSW
$940,000
Elegant Living with Entertainer's Alfresco
Perfectly positioned in a prime location close to community facilities, this stylish two-bedroom home with additional MPR offers modern comfort and plenty of space for effortless entertaining.
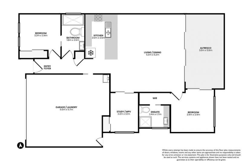
Designed with an open-plan layout, it boasts ducted air-conditioning, premium tiled flooring and plantation shutters for privacy. The sleek kitchen, featuring stone benchtops, and inbuilt SMEG appliances flows seamlessly from the interior living space to the stunning tiled alfresco area, well-equipped with outdoor fan and enclosable all-weather blinds-ideal for year-round enjoyment.
The carpeted bedrooms and multipurpose room provide flexible living options, with the additional space ideal as a study or media room. The spacious master suite features alfresco access, a generous walk-in robe, and a private ensuite, while the second bedroom offers direct access to the main bathroom, creating an ensuite-style experience for guests.
Additional features include a combined laundry to the double garage and smart storage included throughout the home's interior, all complemented by rooftop solar panels for extra household efficiency… Luxury, convenience, and style awaits!
Home Features:
• Pay no exit fees, no DMF, no stamp duty or council rates!
• Open Plan Living
• Two Bedrooms plus Study/MPR
• Master with ensuite, walk-in robe and alfresco access
• Stunning tiled alfresco area with enclosable all-weather blinds
• Ducted air-conditioning and heating
• Premium tiled flooring and modern finishes
• Ceiling fans, downlights and plantation shutters
• Kitchen with stone benchtops and feature lighting
• SMEG appliances and dishwasher
• Two bathrooms with floor to ceiling tiling
• Combined laundry to garage
• Double remote garage with epoxy flooring and storage
• Solar panels installed
• Fully fenced property
• Pet friendly community
Latitude One by Ingenia Lifestyle is located within the picturesque Anna Bay, surrounded by bushland and within proximity to stunning beaches. A few minutes' drive and you'll arrive at the coastline, shopping precincts and the stunning Nelson Bay Marina.
Be part of an established community at Latitude One, with a gold class clubhouse at its heart that is seamlessly integrated into the beautifully landscaped subtropical surrounds. Enjoy walking paths throughout the entire community, travelling through the beautiful gardens and showcasing the breathtaking views.
Community Features:
• Taylors Function Centre
• Soul Works Wellness Centre, comprising of a heated indoor pool and a heated outdoor pool, spa, sauna, and a gym designed for over 55s, overlooking Lake Latitude
• The Leading Jack premium bowling green
• Star Cinema, featuring a selection of your favourite movies
• Harper Square, outdoor alfresco entertaining and BBQ area
• The Sterling sports lounge
• Beauty & Consultant's rooms, for visiting health practitioners
• Library and Business Centre, a private space to retreat and work
• Craft room
A land lease home operates under the land lease model, supported by specific government legislation which guarantees ongoing security and peace of mind.
The model lets you enjoy the benefits of conventional home ownership, providing peace-of-mind with residents owning their own home, without the cost of buying the land and paying council rates.
Should you ever wish to sell, the capital gain is all yours, without fees. But you also enjoy some of the advantages with no council rates or stamp duty, just a weekly site fee which eligible residents offset with rental assistance.
Community living has never been easier. Whether you are looking at your downsizing options or just looking to form friendships and find new hobbies, the community at Latitude One will welcome you with open arms.
Come and discover how you can start your new lifestyle at Latitude One. Contact our friendly team today.
Designed with an open-plan layout, it boasts ducted air-conditioning, premium tiled flooring and plantation shutters for privacy. The sleek kitchen, featuring stone benchtops, and inbuilt SMEG appliances flows seamlessly from the interior living space to the stunning tiled alfresco area, well-equipped with outdoor fan and enclosable all-weather blinds-ideal for year-round enjoyment.
The carpeted bedrooms and multipurpose room provide flexible living options, with the additional space ideal as a study or media room. The spacious master suite features alfresco access, a generous walk-in robe, and a private ensuite, while the second bedroom offers direct access to the main bathroom, creating an ensuite-style experience for guests.
Additional features include a combined laundry to the double garage and smart storage included throughout the home's interior, all complemented by rooftop solar panels for extra household efficiency… Luxury, convenience, and style awaits!
Home Features:
• Pay no exit fees, no DMF, no stamp duty or council rates!
• Open Plan Living
• Two Bedrooms plus Study/MPR
• Master with ensuite, walk-in robe and alfresco access
• Stunning tiled alfresco area with enclosable all-weather blinds
• Ducted air-conditioning and heating
• Premium tiled flooring and modern finishes
• Ceiling fans, downlights and plantation shutters
• Kitchen with stone benchtops and feature lighting
• SMEG appliances and dishwasher
• Two bathrooms with floor to ceiling tiling
• Combined laundry to garage
• Double remote garage with epoxy flooring and storage
• Solar panels installed
• Fully fenced property
• Pet friendly community
Latitude One by Ingenia Lifestyle is located within the picturesque Anna Bay, surrounded by bushland and within proximity to stunning beaches. A few minutes' drive and you'll arrive at the coastline, shopping precincts and the stunning Nelson Bay Marina.
Be part of an established community at Latitude One, with a gold class clubhouse at its heart that is seamlessly integrated into the beautifully landscaped subtropical surrounds. Enjoy walking paths throughout the entire community, travelling through the beautiful gardens and showcasing the breathtaking views.
Community Features:
• Taylors Function Centre
• Soul Works Wellness Centre, comprising of a heated indoor pool and a heated outdoor pool, spa, sauna, and a gym designed for over 55s, overlooking Lake Latitude
• The Leading Jack premium bowling green
• Star Cinema, featuring a selection of your favourite movies
• Harper Square, outdoor alfresco entertaining and BBQ area
• The Sterling sports lounge
• Beauty & Consultant's rooms, for visiting health practitioners
• Library and Business Centre, a private space to retreat and work
• Craft room
A land lease home operates under the land lease model, supported by specific government legislation which guarantees ongoing security and peace of mind.
The model lets you enjoy the benefits of conventional home ownership, providing peace-of-mind with residents owning their own home, without the cost of buying the land and paying council rates.
Should you ever wish to sell, the capital gain is all yours, without fees. But you also enjoy some of the advantages with no council rates or stamp duty, just a weekly site fee which eligible residents offset with rental assistance.
Community living has never been easier. Whether you are looking at your downsizing options or just looking to form friendships and find new hobbies, the community at Latitude One will welcome you with open arms.
Come and discover how you can start your new lifestyle at Latitude One. Contact our friendly team today.
Property Features
Features
- Pets Allowed
- Retirement Village
- Built-ins
- Dishwasher
Facilities
- Lounge
- Entertainment Area
Other
- Courtyard
- Remote Garage
- Linen
- Storage
Property Location
Explore the neighborhood and see what's nearby
- New property alerts
- Save searches & properties
- Newsletter
- My property value
Join the new member centre