UNDER OFFER
Enquire
3
1
1
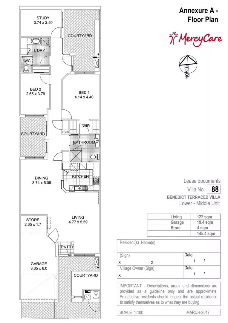
88/71 Ruislip Street, Wembley 6014 Inner Perth, WA
UNDER OFFER
Light Filled North Facing Courtyard Villa
In Mercy Village, for the over55s and retirees, Villa 88 is a terraced villa with approx. 122 sqm of nominal living area, offering open plan living/dining, a spacious kitchen with modern finishes, 2 bedrooms plus a 3rd bedroom/study, semi ensuite bathroom, 2 WCs, and a separate laundry. The attached single garage has additional space for storage and for convenience provides direct access into the villa. Externally there is a front courtyard which catches the winter sun, a central atrium and a rear drying court.
Positioned within a short walk to the residents' community centre, where residents can enjoy a range of social and leisure activities.
Features you will love about Villa 88:
> Timber hybrid planks throughout main living areas and passage, new
carpet in bedrooms, floor tiles in kitchen and wet areas
> Contemporary lighting, contemporary roller blinds on windows
> Engineered stone benchtops and tiled splashbacks in kitchen, bathroom
and laundry
> Stainless steel electric wall oven, gas hotplate, rangehood, 1.5 sinks,
fridge and microwave recesses, under bench and overhead
storage
> The main suite comprises a good-sized bedroom, walk through robe and
semi ensuite with WC.
> Bedroom 2 has a built-in robe and looks out onto the central atrium
> Study/3rd bedroom overlooks the rear courtyard
> The bathroom has a walk in shower recess, adjustable shower head, wall
mounted cabinet with mirrored doors, vanity with deep drawers, heater
lamps, extractor fan.
> Separate 2nd toilet
> Reverse cycle split system A/C in living area and main bedroom suite
> Generous storage options incl. pantry, two storage cupboards in passage,
under bench cupboards and linen press in laundry
> Solar panels
> Rear courtyard with washing line and garden tap
Residents have occupancy rights through their residence contract (lease for life). Maintenance fees are $570.84 in this current financial year.
Mercy Village has a pet friendly policy, small house pets on approval.
The amenities available for residents to enjoy include a library and reading room, well equipped gym, activities room, visiting medical consulting room, multi-purpose social room with adjoining kitchen facilities, elevated terrace with BBQ. Mercy Retirement Village is next door to MercyCare's beautiful award-winning heritage precinct, a short walk from Lake Monger and a quick drive to Subiaco, Leederville, Floreat and the Perth CBD.
Please note: some photos have been enhanced with virtual furniture for marketing purposes.
Positioned within a short walk to the residents' community centre, where residents can enjoy a range of social and leisure activities.
Features you will love about Villa 88:
> Timber hybrid planks throughout main living areas and passage, new
carpet in bedrooms, floor tiles in kitchen and wet areas
> Contemporary lighting, contemporary roller blinds on windows
> Engineered stone benchtops and tiled splashbacks in kitchen, bathroom
and laundry
> Stainless steel electric wall oven, gas hotplate, rangehood, 1.5 sinks,
fridge and microwave recesses, under bench and overhead
storage
> The main suite comprises a good-sized bedroom, walk through robe and
semi ensuite with WC.
> Bedroom 2 has a built-in robe and looks out onto the central atrium
> Study/3rd bedroom overlooks the rear courtyard
> The bathroom has a walk in shower recess, adjustable shower head, wall
mounted cabinet with mirrored doors, vanity with deep drawers, heater
lamps, extractor fan.
> Separate 2nd toilet
> Reverse cycle split system A/C in living area and main bedroom suite
> Generous storage options incl. pantry, two storage cupboards in passage,
under bench cupboards and linen press in laundry
> Solar panels
> Rear courtyard with washing line and garden tap
Residents have occupancy rights through their residence contract (lease for life). Maintenance fees are $570.84 in this current financial year.
Mercy Village has a pet friendly policy, small house pets on approval.
The amenities available for residents to enjoy include a library and reading room, well equipped gym, activities room, visiting medical consulting room, multi-purpose social room with adjoining kitchen facilities, elevated terrace with BBQ. Mercy Retirement Village is next door to MercyCare's beautiful award-winning heritage precinct, a short walk from Lake Monger and a quick drive to Subiaco, Leederville, Floreat and the Perth CBD.
Please note: some photos have been enhanced with virtual furniture for marketing purposes.
Property Features
Features
- Pets Allowed
- Retirement Village
- Air Conditioning
- Built-ins
Other
- Heating
- Roller Door Access
- Openable Windows
- Carpeted
Property Location
Explore the neighborhood and see what's nearby
- New property alerts
- Save searches & properties
- Newsletter
- My property value
Join the new member centre