Be the first to receive the latest updates in retirement property with our newsletter
Retirement Living For Sale in South Brisbane, QLD
60 Properties
-
6 Oswin Street, Acacia Ridge 4110
-
Tarragindi, South Brisbane, QLD
-
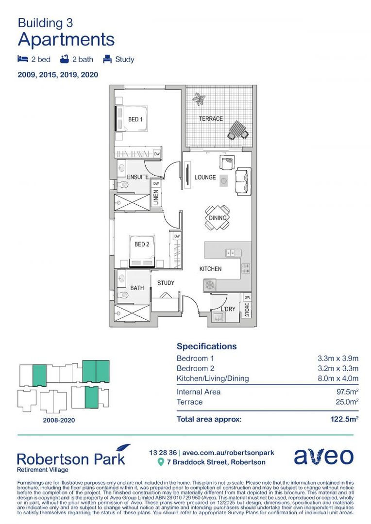
Robertson, South Brisbane, QLD
Ground-floor two-bedroom apartment
2019/7 Braddock Street, Robertson 4109
South Brisbane, QLD$775,000 - Retirement
-
Woolloongabba, South Brisbane, QLD
-
Tarragindi, South Brisbane, QLD
-
Tarragindi, South Brisbane, QLD
-
-
-
-
Advertisement
Advertisement
Showing 50-60 of 60 results