SOLD
Enquire
2
1
1
43 133 South Street, Tuncurry 2428 Mid North Coast, NSW
SOLD
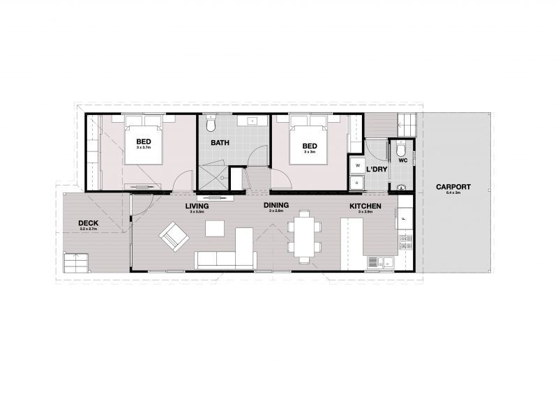
Crystal Waters Estate- Site 43
Brand new two bedroom home. This home is being built now and is available for sale off the plan.
It has blackbutt timber flooring in the living areas and carpet in the bedrooms and the laundry and the bathroom are tiled with the wall tiles in the bathroom going to the ceiling. It has a modern kitchen with gas cooktop and underbench oven, dish washer and pantry. There is a small backyard with a storage shed. It has a covered deck on the north side of the home and a carport. It has ceiling fans, vertical blinds and 1 and 1/2 bathrooms
If you are looking to own your own home in an over 50's lifestyle village within a gated community this could be the perfect home for you.
Crystal Waters has a Community Centre with a pool, tennis court and bowling green. There is an active Social Club which organise lots of varied activities to enjoy.
Please give us a call today on 02 6554 7447 to make an appointment or speak to Lorraine if you would like any more information about the home or the Village.
It has blackbutt timber flooring in the living areas and carpet in the bedrooms and the laundry and the bathroom are tiled with the wall tiles in the bathroom going to the ceiling. It has a modern kitchen with gas cooktop and underbench oven, dish washer and pantry. There is a small backyard with a storage shed. It has a covered deck on the north side of the home and a carport. It has ceiling fans, vertical blinds and 1 and 1/2 bathrooms
If you are looking to own your own home in an over 50's lifestyle village within a gated community this could be the perfect home for you.
Crystal Waters has a Community Centre with a pool, tennis court and bowling green. There is an active Social Club which organise lots of varied activities to enjoy.
Please give us a call today on 02 6554 7447 to make an appointment or speak to Lorraine if you would like any more information about the home or the Village.
Property Features
Features
- Dishwasher
- Fully Fenced
- Living Area
Other
- Polished Timber Floors
- Gas Enabled
- Garden Shed
- Rainwater Tank
Property Location
Explore the neighborhood and see what's nearby
- New property alerts
- Save searches & properties
- Newsletter
- My property value
Join the new member centre