SOLD
2
1
1
SOLD
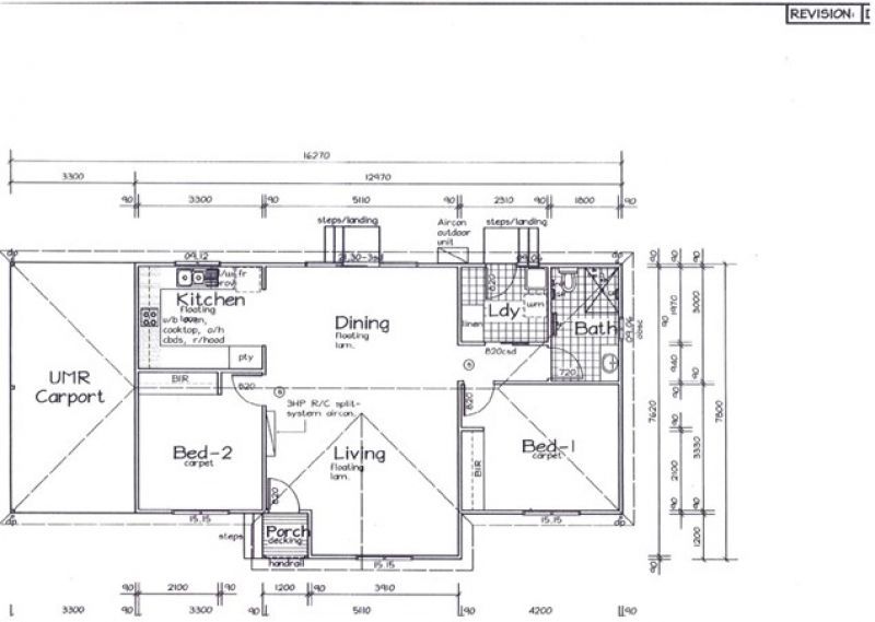
Site 213 - New Home
This home has a well laid out kitchen tucked neatly away from view, opposite a dedicated dining area that flows into the open plan lounge in the centre of the home. There are 2 generous bedrooms one at each end of the home both bedrooms have built in robes. Outside an oversize carport and a large low maintenance easy care garden completes the home. Free Site Fees on the first 3 Months * Don't miss out call now For more information 08 8255 2229
Northern Community Residential Village caters to people over the age of 50 who may want to downsize into a more manageable home whilst still maintaining their independence. With an active social group, range of facilities and low maintenance modern homes, Northern Community Residential Village offers an unbeatable home and lifestyle at an affordable price.
Free Site Fees on the first 3 Months * T&C The offer is only valid for new display homes and only available where a contract has been signed and a full 10% deposit received prior to June 30th 2022. The offer is non transferrable. Three months free site fees will commence from the day of settlement which is to be no greater than 6 weeks from the execution of the sales contract.
Disclaimer: Some images virtually staged.
Features
- Retirement Village
- Retirement Property
- New property alerts
- Save searches & properties
- Newsletter
- My property value
Join the new member centre