SOLD
                    
                    Enquire
                
             
                    1
 
                    1
 
                    2
                            40/85-89 The Parade, North Haven 2443
                            Mid North Coast, NSW
                        
                    SOLD
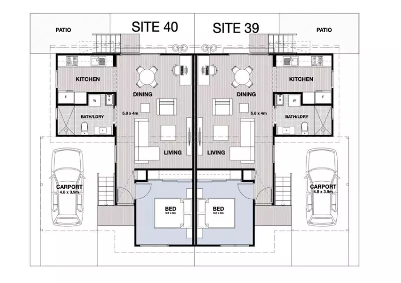
Site 40 - new home
                
                Make the lifestyle change you've been dreaming of with this brand new, modern duplex nestled in the serene Jacaranda Lifestyle Village. This thoughtfully designed home is perfect for downsizers seeking comfort, style, and convenience.
Features:
1 Bedroom: Retreat to a cozy bedroom complete with a plush carpet flooring, built-in robe, and a ceiling fan for added comfort.
Open Plan Living: Embrace the spaciousness of the open-plan living and dining area, enhanced by ceiling fans and downlights for a welcoming ambiance.
Modern Kitchen: Cook with ease in the functional kitchen equipped with gas cooking facilities, a dishwasher, and ample storage space for all your culinary needs.
Bathroom: Pamper yourself in the sleek bathroom featuring a large step-in shower and laundry space, providing both functionality and elegance.
Wood Look Flooring: Enjoy the aesthetics and durability of wood look flooring in the living areas, adding a touch of warmth to the interiors.
Single Carport: Park your vehicle securely in the convenience of your own single carport, providing protection from the elements.
Join the over 50's lifestyle community at Jacaranda Village and slip effortlessly into the relaxed coastal lifestyle you've been dreaming of. Indulge in the myriad of North Haven shops,cafes and eateries a short walk away. It's just 4km to Laurieton town centre and approx 30 minute drive to Port Macquarie with access to shoppping centres, Centrelink, hospital and domestic airport.
Don't miss out on the opportunity to make this stunning duplex your new home. Schedule a viewing today and experience the ultimate in comfort and style at Jacaranda Lifestyle Village.
 This home can be purchased outright for $295,000
(Reference No: HAMP-00358-375)
            
            (Reference No: HAMP-00358-375)
Features
- Retirement Village
- Broadband
- Dishwasher
- Retirement Property
Other
- Balcony
- Polished Timber Floors
- Carport
- CeilingFans
- New property alerts
- Save searches & properties
- Newsletter
- My property value
Join the new member centre
 
         
    