SOLD
1
1
-
DEPOSIT TAKEN - UNDER CONTRACT - Charming Living - Brand New at Broadlands
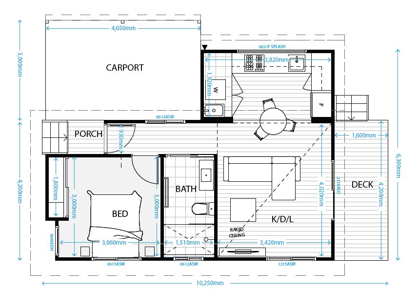
Designed for easy living, D8 is an inviting home. The open plan layout allows an easy flow between the lounge, dining, and kitchen, opening to an outdoor deck, perfect for relaxing al fresco. Designed to maximise space, the spacious and well lit bedroom is sure to please, complete with generous built-ins and a modern bathroom. A covered carport completes this stylish home.
Your Lifestyle
Broadlands Green Point is the Central Coast’s most desirable “over 50’s” Village.
This superb home is just a short walk from Broadlands fabulous Community Leisure Centre, sun drenched Swimming Pools, Men’s Shed Workshop and Garden Club.
Enjoy as many of the activities as you like, including -
Exercise Group, Qigong, Billiards, Table tennis, Darts, Social BBQ and Friday afternoon drinks, Wine tasters group, Sunday Movies, as well as a host of special events (Market Days, Christmas in July, Band Days, Christmas Lunch etc).
Your Needs
Walk for just a few minutes to reach the Coles Supermarket, Medical Centre, Major Pharmacy, Specialty shops and Bus stops.
A wide range of in-Home service and care providers service Broadlands Green Point.
Conditions
Fortnightly site fees apply.
Sorry, dogs and cats are not permitted at the Village.
All Residents must be over 50 years of age.
For further Information - Broadlands Community Management – open Monday to Friday T 43677064.or phone 0499683847 all hours.
Features
- Garage or Parking Space
- Secure Access
Facilities
- Swimming Pool
- Recreation Centre / Clubhouse
Supports
- Independent Living
Locations
- Medical Services Nearby
- Close to Transport
- Clubs Nearby
- Close to Shops
- New property alerts
- Save searches & properties
- Newsletter
- My property value
Join the new member centre