Bay Village
SOLD
1
1
1
5/1 Philip Avenue, Victor Harbor 5211 South East SA, SA
SOLD
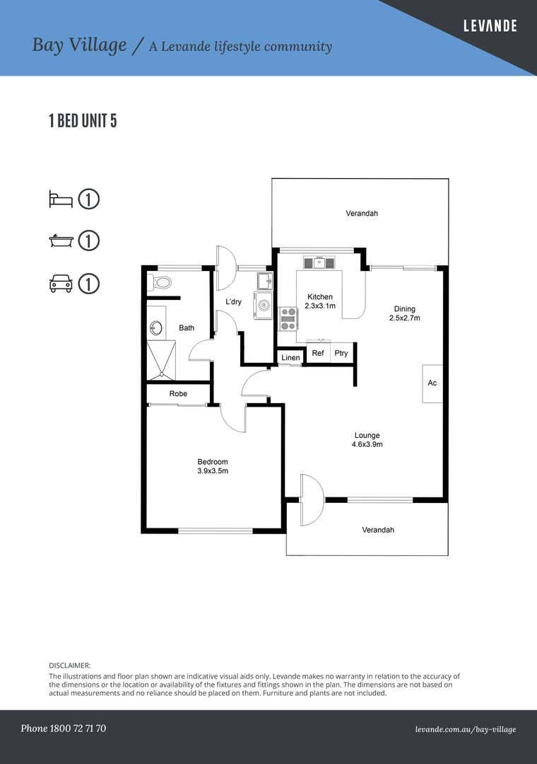
Unit 5, Bay Village, Philip Avenue, Victor Harbor
Levande Bay Village sits amongst stunning gardens and is surrounded by rolling hills and coastal views. It is one of South Australia’s most sought after resort areas and it's only minutes from Victor Harbor. You can enjoy a round of golf or lawn bowls with friends at the first class facilities available near the estate.
If you’re looking to downsize and worry less about maintenance – but still be independent and live an active lifestyle – then Bay Village makes a great home base. The active community centre's social committee organises many activities and entertainment, including tours on the village bus, billiard games, card nights, keep fit classes and much more.
Unit 5 features:
- Master bedroom with WIR
- Newly renovated kitchen
- Freshly painted with new floor coverings
- Newly renovated bathroom
- Low maintenance garden
Book your private tour today and discover the great lifestyle on offer at Bay Village. Village tours and inspections by appointment only. Please contact Philip Jones.
* Prices correct as at 14/6/23. Exit fees and other charges are payable. Subject to availability. Images are for illustrative purposes only and may vary. Levande accepts no responsibility as a result of any error, omission or misrepresentation of information. Furniture and accessories not included.
Property Features
Features
- Garage or Parking Space
- Pets Allowed
- Secure Access
- Retirement Village
Facilities
- Caravan Parking / Storage
- Boat Parking / Storage
Supports
- Independent Living
- Community Bus
- 24 Hour Emergency Call
Locations
- Medical Services Nearby
- Close to Transport
- Close to Beach
- Clubs Nearby
Property Location
Explore the neighborhood and see what's nearby
- New property alerts
- Save searches & properties
- Newsletter
- My property value
Join the new member centre