Richfield Retirement Village
SOLD
Enquire
2
1
2
317-369 wells road Aspendale G 317 - 369 wells road aspendale gardens , Aspendale Gardens 3195
Inner South Melbourne, VIC
SOLD
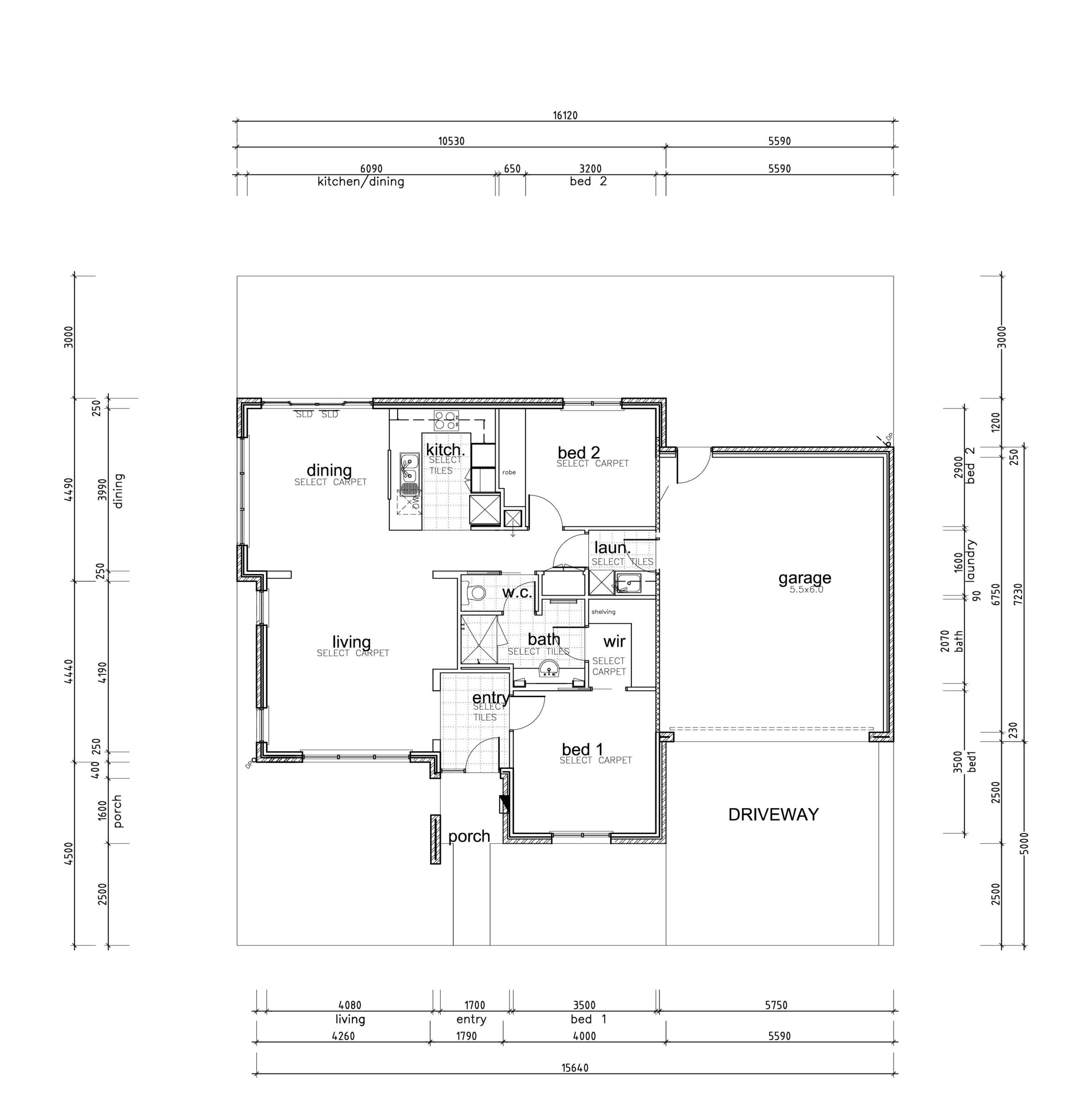
Richfield Retirement Village
Indulge in the open-plan lifestyle of this exquisite 2-bedroom unit with a double car garage, featuring Richfield's captivating Randwick design. Brimming with intricate details and natural light, this distinctive dwelling provides all the modern comforts within a meticulously refurbished structure
Feature Include:
Fully-equipped kitchen with floor tiles and a beautiful Caesar stone bench top
Open floor living and dining area
Spacious master bedroom with walk-in robe and ensuite
Second bedroom with built in wardrobe
Gas ducted heating & split system air conditioning
Fully landscaped garden
Laundry with storage cupboards
Double car garage with driveway
Features
- Garage or Parking Space
- No Steps
- Pets Allowed
- Lift Access
Facilities
- Swimming Pool
- Recreation Centre / Clubhouse
- Waterfront Site
- Caravan Parking / Storage
Supports
- Independent Living
- Community Bus
- 24 Hour Emergency Call
Locations
- Medical Services Nearby
- Close to Transport
- Close to Beach
- Clubs Nearby
- New property alerts
- Save searches & properties
- Newsletter
- My property value
Join the new member centre