SOLD
Enquire
2
2
2
30/21 Sunset Boulevard, Berwick 3806 South East Melbourne, VIC
SOLD
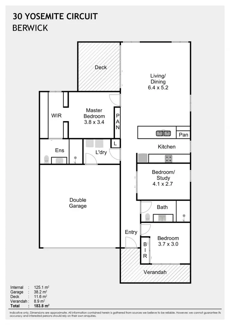
30 Yosemite Circuit - Established Flinders
Unlock your dream lifestyle at Halcyon Berwick
Welcome to Site 82, nestled in a serene corner of Stockland's Minta Community. This gated haven offers the perfect blend of security and tranquillity, surrounded by 22 hectares of natural reserves, lakes, and lush green spaces.
The Flinders-designed home at Site 82 seamlessly combines modern comfort with the beauty of its natural surroundings. With a spacious 182 m² layout and a generous 39 m² double garage, this home provides ample room for both everyday living and leisure. The open-plan design bathes the living, dining, and kitchen areas in natural northern light, creating a warm and inviting atmosphere.
This beautiful home features two well-appointed bedrooms, including a master suite with a luxurious ensuite and a large walk-through robe. Sliding doors from the master bedroom open to a charming undercover alfresco area, perfect for entertaining or unwinding. A versatile multipurpose room allows you to adapt the space to your lifestyle needs, whether it be a home office, guest room, or hobby space.
The private main bedroom boasts a tiled ensuite and walk-in robes, while the multipurpose room is perfect for a home office, theatre room or crafts room. The entertainer's kitchen is equipped with Fisher & Paykel appliances, reconstituted stone benchtops, and an abundance of storage.
The rear deck connects seamlessly to the internal living areas, creating a generous covered outdoor alfresco deck perfect for entertaining. The spacious tiled bathroom adds a touch of luxury to your daily routine. The double garage design ensures plenty of space for your vehicles and storage needs.
• 2 Bedrooms and a Multipurpose Room
• Master Bedroom with large walk-in robes and ensuite
• Fisher & Paykel appliances and reconstituted stone benchtops
• Abundance of storage
• Double Garage
• Rear deck connected to internal living areas
• Open Plan Living
With its vibrant community and range of social activities, Halcyon Berwick offers more than just a residence; it's a gateway to a fulfilling and enriched lifestyle. Come and experience the perfect blend of modern living and natural beauty at Site 82 Halcyon Berwick. Your dream lifestyle awaits!
Welcome to Site 82, nestled in a serene corner of Stockland's Minta Community. This gated haven offers the perfect blend of security and tranquillity, surrounded by 22 hectares of natural reserves, lakes, and lush green spaces.
The Flinders-designed home at Site 82 seamlessly combines modern comfort with the beauty of its natural surroundings. With a spacious 182 m² layout and a generous 39 m² double garage, this home provides ample room for both everyday living and leisure. The open-plan design bathes the living, dining, and kitchen areas in natural northern light, creating a warm and inviting atmosphere.
This beautiful home features two well-appointed bedrooms, including a master suite with a luxurious ensuite and a large walk-through robe. Sliding doors from the master bedroom open to a charming undercover alfresco area, perfect for entertaining or unwinding. A versatile multipurpose room allows you to adapt the space to your lifestyle needs, whether it be a home office, guest room, or hobby space.
The private main bedroom boasts a tiled ensuite and walk-in robes, while the multipurpose room is perfect for a home office, theatre room or crafts room. The entertainer's kitchen is equipped with Fisher & Paykel appliances, reconstituted stone benchtops, and an abundance of storage.
The rear deck connects seamlessly to the internal living areas, creating a generous covered outdoor alfresco deck perfect for entertaining. The spacious tiled bathroom adds a touch of luxury to your daily routine. The double garage design ensures plenty of space for your vehicles and storage needs.
• 2 Bedrooms and a Multipurpose Room
• Master Bedroom with large walk-in robes and ensuite
• Fisher & Paykel appliances and reconstituted stone benchtops
• Abundance of storage
• Double Garage
• Rear deck connected to internal living areas
• Open Plan Living
With its vibrant community and range of social activities, Halcyon Berwick offers more than just a residence; it's a gateway to a fulfilling and enriched lifestyle. Come and experience the perfect blend of modern living and natural beauty at Site 82 Halcyon Berwick. Your dream lifestyle awaits!
Property Features
Features
- Pets Allowed
- Retirement Village
- Air Conditioning
- Built-ins
Facilities
- Swimming Pool
- Entertainment Area
- Gym
Locations
- Close to Transport
- Close to Shops
- Close to Parklands
Other
- Heating
- Remote Garage
- Secure Parking
- Carpeted
Property Location
Explore the neighborhood and see what's nearby
- New property alerts
- Save searches & properties
- Newsletter
- My property value
Join the new member centre