SOLD
Enquire
1
1
-
446/220 Hansens Road, Tumbi Umbi 2261 Central Coast, NSW
SOLD
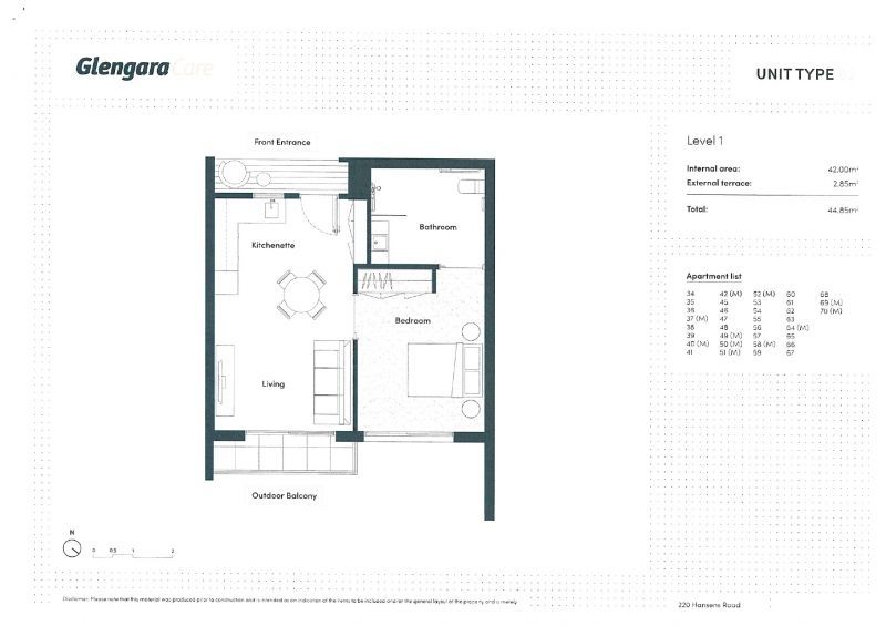
Everything you need at your fingertips
Our apartments feature an open floor plan with a separate living room, dining area, kitchenette, outdoor space and a large bedroom with ensuite and ample closet space. Each unit is equipped with emergency response systems and are fully wheelchair accessible – complete with subtle touches and design elements that will help to support your needs for years to come.
Glengara Care has a variety of common areas including a library, dining room with a deck, a TV room, and a beautiful courtyard for residents to enjoy.
With modern amenities and personalised care just steps away, it is the perfect blend of comfort and tranquillity. Embrace a lifestyle where every detail has been crafted with your wellbeing in mind.
Features include:
• A private, secure space with a lockable door
• Large built-in wardrobe with generous storage
• Beautifully appointed kitchenette & ensuite bathroom
• External sliding door to a balcony area
• Reverse cycle air conditioning throughout
• Pet friendly (subject to approval)
• Enjoy Chef-prepared lunch and dinner
• 24 hour on site staff & emergency call system
• Village bus and social activities on site
• Ducted reverse cycle air-conditioning
• Opportunity to take part in regular activities and outings
• No ACAT or assets assessment required
Glengara Care Apartments is a premium care option in our existing Glengara community, set in the beautiful Glenning Valley – just 1 hour north of Sydney on the beautiful NSW Central Coast.
We provide a variety of healthcare services and purpose driven activities where residents can enjoy engaging with others and staying active both physically and mentally. From arts and crafts, to exercise classes and outdoor excursions, there is something for everyone. Our goal is to enhance the quality of life for all residents, promoting independence and fostering a strong sense of community.
Glengara Care is conveniently located near public transportation, shopping, and medical facilities, making it easy for residents to stay connected to their community. Don't miss this opportunity to live in a community where you can receive the care you need while maintaining your independence. Contact us to book your private appointment.
Prices are correct at time of upload and are subject to change. You will pay a departure fee when you leave this village.
Glengara Care has a variety of common areas including a library, dining room with a deck, a TV room, and a beautiful courtyard for residents to enjoy.
With modern amenities and personalised care just steps away, it is the perfect blend of comfort and tranquillity. Embrace a lifestyle where every detail has been crafted with your wellbeing in mind.
Features include:
• A private, secure space with a lockable door
• Large built-in wardrobe with generous storage
• Beautifully appointed kitchenette & ensuite bathroom
• External sliding door to a balcony area
• Reverse cycle air conditioning throughout
• Pet friendly (subject to approval)
• Enjoy Chef-prepared lunch and dinner
• 24 hour on site staff & emergency call system
• Village bus and social activities on site
• Ducted reverse cycle air-conditioning
• Opportunity to take part in regular activities and outings
• No ACAT or assets assessment required
Glengara Care Apartments is a premium care option in our existing Glengara community, set in the beautiful Glenning Valley – just 1 hour north of Sydney on the beautiful NSW Central Coast.
We provide a variety of healthcare services and purpose driven activities where residents can enjoy engaging with others and staying active both physically and mentally. From arts and crafts, to exercise classes and outdoor excursions, there is something for everyone. Our goal is to enhance the quality of life for all residents, promoting independence and fostering a strong sense of community.
Glengara Care is conveniently located near public transportation, shopping, and medical facilities, making it easy for residents to stay connected to their community. Don't miss this opportunity to live in a community where you can receive the care you need while maintaining your independence. Contact us to book your private appointment.
Prices are correct at time of upload and are subject to change. You will pay a departure fee when you leave this village.
Property Features
Features
- Retirement Village
- Air Conditioning
- Built-ins
- Retirement Property
Other
- Balcony
- Kitchenette
Property Location
Explore the neighborhood and see what's nearby
- New property alerts
- Save searches & properties
- Newsletter
- My property value
Join the new member centre