SOLD
Enquire
1
1
1
T18/52 Wellington Drive, Nambucca Heads 2448
Mid North Coast, NSW
SOLD
Ocean Breeze Retreat
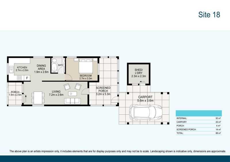
Enjoy the sound of the waves from this charming home, perfectly positioned backing onto the crown reserve with stunning water views of the Nambucca Beach. This well-maintained property offers spacious living and dining areas, enhanced by thoughtful extra storage solutions throughout, and a split system air conditioning unit for year-round comfort.
The home features hybrid timber flooring throughout the main living areas with security windows and doors and stylish Venetian blinds for added privacy. The kitchen is equipped with a gas oven and cooktop, and a fridge is included, making it move-in ready.
The bedroom offers a built-in robe, while the tiled bathroom includes a luxurious spa bath for ultimate relaxation. There is a separate laundry and a storage shed which leads to an external clothesline for convenience.
The fully enclosed timber deck at the rear alfresco is perfect for catching the afternoon sunshine, while the front patio, complete with external awnings, offers a peaceful spot to enjoy the surrounding bushland views. Outside, the home features an established garden, a paved carport, and a garden shed for extra storage. This peaceful coastal retreat offers the perfect combination of privacy, comfort, and ocean breezes.
Home Features:
• Single bedroom with built in robe
• Established garden and bushland views
• Split system heating and cooling to main living
• Hybrid timber flooring, carpet to the bedroom
• Security windows and doors, venetian blinds throughout
• Kitchen with gas oven and cooktop, fridge included
• Tiled Bathroom and laundry, external clothesline
• Spa bath added to the bathroom
• Rear alfresco- fully enclosed timber deck
• Front patio with external awnings
• Paved carport
• Garden Shed
Who says you can't have a rainforest, beach and tidal lagoon all on your doorstep? Ingenia Holidays Nambucca Heads is positioned where the Nambucca River and South Pacific Ocean meet, our residents can enjoy the luxury of direct access to a tidal lagoon as well as a surf beach less than two minutes' walk away.
A land lease home operates under the land lease model, supported by specific government legislation which guarantees ongoing financial security and peace of mind.
The model lets you enjoy the benefits of conventional home ownership, with residents owning their own home, without the cost of buying the land and paying council rates.
Should you ever wish to sell, the capital gain is all yours, without exit fees. But you also enjoy some of the advantages- with no council rates or stamp duty, just a weekly site fee which eligible residents offset with rental assistance.
Pay no exit fees, DMF, stamp duty or council rates!
Contact our friendly team today and discover how you can start your new relaxed way of living at Ingenia Lifestyle Nambucca Heads.
The home features hybrid timber flooring throughout the main living areas with security windows and doors and stylish Venetian blinds for added privacy. The kitchen is equipped with a gas oven and cooktop, and a fridge is included, making it move-in ready.
The bedroom offers a built-in robe, while the tiled bathroom includes a luxurious spa bath for ultimate relaxation. There is a separate laundry and a storage shed which leads to an external clothesline for convenience.
The fully enclosed timber deck at the rear alfresco is perfect for catching the afternoon sunshine, while the front patio, complete with external awnings, offers a peaceful spot to enjoy the surrounding bushland views. Outside, the home features an established garden, a paved carport, and a garden shed for extra storage. This peaceful coastal retreat offers the perfect combination of privacy, comfort, and ocean breezes.
Home Features:
• Single bedroom with built in robe
• Established garden and bushland views
• Split system heating and cooling to main living
• Hybrid timber flooring, carpet to the bedroom
• Security windows and doors, venetian blinds throughout
• Kitchen with gas oven and cooktop, fridge included
• Tiled Bathroom and laundry, external clothesline
• Spa bath added to the bathroom
• Rear alfresco- fully enclosed timber deck
• Front patio with external awnings
• Paved carport
• Garden Shed
Who says you can't have a rainforest, beach and tidal lagoon all on your doorstep? Ingenia Holidays Nambucca Heads is positioned where the Nambucca River and South Pacific Ocean meet, our residents can enjoy the luxury of direct access to a tidal lagoon as well as a surf beach less than two minutes' walk away.
A land lease home operates under the land lease model, supported by specific government legislation which guarantees ongoing financial security and peace of mind.
The model lets you enjoy the benefits of conventional home ownership, with residents owning their own home, without the cost of buying the land and paying council rates.
Should you ever wish to sell, the capital gain is all yours, without exit fees. But you also enjoy some of the advantages- with no council rates or stamp duty, just a weekly site fee which eligible residents offset with rental assistance.
Pay no exit fees, DMF, stamp duty or council rates!
Contact our friendly team today and discover how you can start your new relaxed way of living at Ingenia Lifestyle Nambucca Heads.
Features
- Retirement Village
- Air Conditioning
- Bath
- Built-ins
Facilities
- Entertainment Area
Other
- Garden Shed
- New property alerts
- Save searches & properties
- Newsletter
- My property value
Join the new member centre