SOLD

2

1

1
SOLD
55/37 Britannia Road, Leederville 6007, Inner Perth, WA - Sold
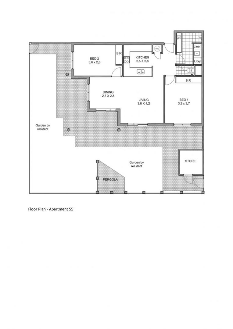
CURRENTLY UNDER OFFER. On the ground floor of the Atrium Building which comprises just 16 apartments, Apt 55 has a corner position adjacent to park lands and ovals.
A fully renovated 2 bedroom apt with a garden, located In the Leederville Gardens Retirement Estate this beautiful apartment has had a complete makeover with high quality, contemporary features, with some special touches to impress you.
Features you will love about this property:
- Generous open plan living & dining
-
Separation of the two bedrooms
- Wide plank timber look flooring, carpet in bedrooms
- Modern timber look cabinetry, engineered stone benchtops in kitchen
- Two pantries, deep drawers, under bench & overhead storage in kitchen
- Single drawer dishwasher, ceramic top electric cooktop, electric wall oven
- 1.5 sinks, drainer insert and chopping board cover
- Contemporary feature lighting under overhead cupboards in kitchen
- Sliding glass doors to the garden from the living & dining spaces
- Large windows to each room
- LED lighting, track lighting in the dining space, dimmer switches
- Generous storage options in bathroom, mirrored overhead cupboards
-
Walk in shower recess, adjustable shower rail
-
Engineered stone benchtop on vanity, floating basin, feature lighting
- Integrated laundry nook with stone benchtop, basin, cupboards
- Reverse cycle air conditioning in living area & main bedroom
…..and that's just the interior!
Outside there is a very spacious garden area with lawn, established garden beds, a lockable shed, brick and timber gazebo, and two covered terraces. A lockable gate allows you private access to the park next door. A single, allocated, covered carport is located just in front of the Atrium Building. Residents have occupancy rights through their Residence Contract (life lease) and there is no stamp duty to pay. The residents' clubhouse has had a recent make over and is looking fabulous! It comprises a multi-purpose function room, TV, pool table, fully equipped kitchen for functions, a well-stocked library, reading room, hair salon, furnished alfresco terrace overlooking the Britannia Reserve, BBQ facilities. Leederville Gardens is strategically located, convenient to the shopping, retail and entertainment precincts at Mt Hawthorn and Leederville. It offers easy access to the freeway, and a public bus route. For the more active, you can access Lake Monger and Loftus Leisure Centre and Beatty Park are a short drive away
Features
- Pets Allowed
- Retirement Village
- Air Conditioning
- Built-ins
Locations
- Close to Transport
- Close to Shops
Other
- Heating
- Close to Schools
- Carpeted
- Car Parking - Surface
- New property alerts
- Save searches & properties
- Newsletter
- My property value
Join the new member centre
