MYVISTA
SOLD

2

1

1
SOLD
12/11 Nugent Street, Balcatta 6021, North West Perth, WA - Sold
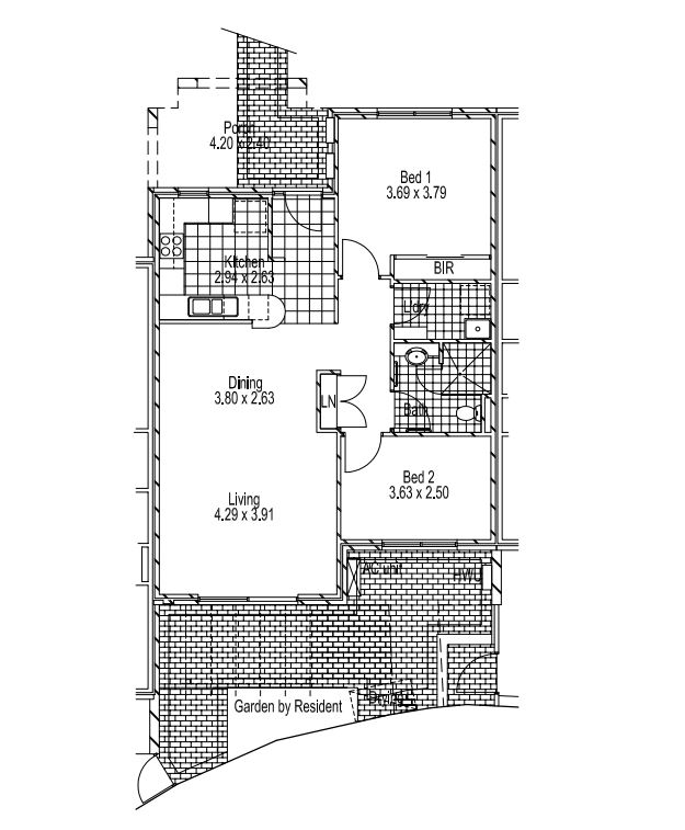
This spacious and inviting retirement village property offers a thoughtfully designed layout, perfect for comfortable living. The open plan living and dining area creates a bright and airy atmosphere, ideal for both relaxation and entertaining. The well-equipped kitchen boasts plenty of storage, fridge and microwave recess, induction hotplate and electric oven with plenty of space, making meal preparation a breeze.
Featuring two bedrooms with built-in robes, a toilet/ bathroom with heat lamp and grab rails plus a separate laundry room, the villa provides ample space to suit your lifestyle needs.
The villa also comes complete with split system air conditioning, new carpets, window treatments, 24 hour medical emergency alarm system and wheelchair width passageways and doors.
Step outside to the rear alfresco area complete with a gas bayonet for BBQ and low maintenance garden beds. This villa is set back so you can enjoy peaceful moments in your private outdoor space or watch people out and about enjoying the parklands next door. You will have your own single car port plus the use of your own lock up storage unit adgecent. <!--EndFragment-->
Residents have occupancy rights through their residence contract (life lease).
A small house pet may be allowed, on approval from MYVISTA.
MYVISTA has been providing care and services to the community at its Balcatta location for over 30 years and is adjacent to parklands in close proximity to the Stirling Gate and Northlands shopping centres, with nearby medical suites and a main public bus route.
Features
- Garage or Parking Space
- No Steps
- Pets Allowed
- Retirement Village
Facilities
- Swimming Pool
- Recreation Centre / Clubhouse
- Courtyard
Supports
- Independent Living
- 24 Hour Emergency Call
- Home care services
Locations
- Medical Services Nearby
- Close to Transport
- Clubs Nearby
- Church Nearby
- New property alerts
- Save searches & properties
- Newsletter
- My property value
Join the new member centre
