SOLD

3

1

1
SOLD
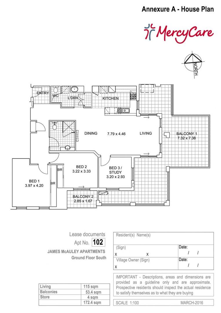
102/71 Ruislip Street, Wembley 6014, Inner Perth, WA - Sold
UNDER OFFER - Apartment 102 is on the ground floor of the James McAuley Apartment building at Mercy Retirement Village, and has ample terrace area that overlooks grassland, gardens and mature trees, even a sighting of Lake Monger in the distance.
The apartment has 2 bedrooms, study/3rd bedroom, bathroom + toilet, separate laundry, 2nd toilet, modern kitchen and generous sized living/dining area.
Notable features:
- Secured building with elegant, welcoming foyer
- Located on the south/east corner of the building
- Spacious entry to hallway
- Built in robes in both bedrooms
- Open plan kitchen with stunning black gloss bench top and double sink
- Stainless steel electric wall oven and gas hotplate
- Good size pantry, under bench and overhead storage in the kitchen
- Window treatments throughout
- Storage options including linen press in passage and broom closet in laundry
- Split system reverse cycle air condition unit in living/dining and main bedroom
- Intercom, and a medical alarm system
- Balcony surrounds - kitchen, living/dining and study
- 2nd bedroom has access to separate balcony
- Balcony has pull down screens for extra weather protection
- Undercover parking and visitor parking
- Lockable store room at basement level
Vehicle entry is from the tree-lined Barrett Street and has a gentle incline to reach your designated parking bay. The apartment building is located in an elevated section of the village, adjacent to the campus heritage trail.
Mercy Village offers a diverse range of social activities, including carpet bowls, weekly craft groups, organized morning / afternoon teas, happy hours, communal dinners and more.
Residents have occupancy rights through their residence contract [Lease for Life] Please Note: some of the photos have been enhanced with virtual furniture of marketing purposes only.
Features
- Pets Allowed
- Retirement Village
- Air Conditioning
- Built-ins
Locations
- Close to Transport
- Close to Shops
Other
- Heating
- Carpeted
- Car Parking - Surface
- Disabled Access
- New property alerts
- Save searches & properties
- Newsletter
- My property value
Join the new member centre
