SOLD
Enquire
1
1
-
426/220 Hansens Road, Tumbi Umbi 2261 Central Coast, NSW
SOLD
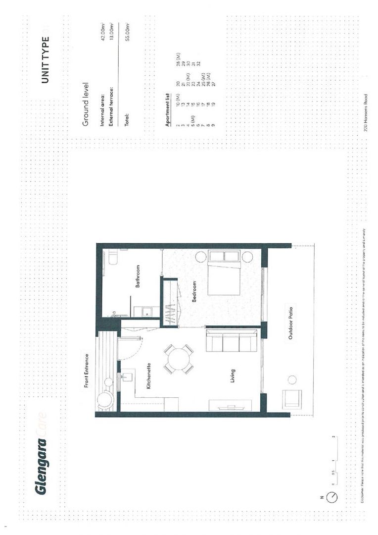
Ground floor apartment with outdoor courtyard
Discover serenity and convenience in our 1 bedroom, 1 bathroom care apartment. Conveniently located close to the dining area in our care community, this unit offers a comfortable retreat.
Our apartments feature an open floor plan with a separate living room, dining area, kitchenette, outdoor space and a large bedroom with ensuite and ample closet space. Each unit is equipped with emergency response systems and are fully wheelchair accessible – complete with subtle touches and design elements that will help to support your needs for years to come.
Glengara Care also has a variety of common areas including a library, dining room with a deck, a TV room, and a beautiful courtyard for residents to enjoy
With modern amenities and personalised care just steps away it is the perfect blend of comfort and tranquillity. Embrace a lifestyle where every detail has been crafted with your wellbeing in mind!
Features include:
• A private, secure space with a lockable door
• Large built in wardrobe with generous storage
• Beautifully appointed kitchenette & ensuite bathroom
• External sliding door to an outdoor patio area
• Reverse cycle air conditioning throughout
• Pet friendly (subject to approval)
• Enjoy Chef-prepared lunch and dinner or enjoy delicious home cooked meals in your apartment
• 24 hour on site staff & emergency call system
• Village bus and social activities on site
• Ducted reverse cycle air-conditioning
• Opportunity to take part in regular activities and outings
• No ACAT or assets assessment required
Glengara Care Apartments offer premium care within the Glengara community, nestled in Glenning Valley, just 1 hour north of Sydney on the NSW Central Coast. Your new home is part of the village, so you can enjoy its excellent amenities.
Our on-site staff is available 24/7 to assist with daily living and ensure safety and well-being. We offer a range of healthcare services and activities that promote engagement and mental and physical activity. From arts and crafts to exercise and outdoor excursions, there's something for everyone. We aim to enhance residents' quality of life, promote independence, and foster community.
Glengara Care is close to transportation, shopping, and medical facilities, ensuring easy access to the community.
Don't miss this opportunity to live in a community where you can receive the care you need while maintaining your independence. Contact us to book your private appointment.
Prices are correct at time of upload and are subject to change. You will pay a departure fee when you leave this village. Images are indicative only.
Our apartments feature an open floor plan with a separate living room, dining area, kitchenette, outdoor space and a large bedroom with ensuite and ample closet space. Each unit is equipped with emergency response systems and are fully wheelchair accessible – complete with subtle touches and design elements that will help to support your needs for years to come.
Glengara Care also has a variety of common areas including a library, dining room with a deck, a TV room, and a beautiful courtyard for residents to enjoy
With modern amenities and personalised care just steps away it is the perfect blend of comfort and tranquillity. Embrace a lifestyle where every detail has been crafted with your wellbeing in mind!
Features include:
• A private, secure space with a lockable door
• Large built in wardrobe with generous storage
• Beautifully appointed kitchenette & ensuite bathroom
• External sliding door to an outdoor patio area
• Reverse cycle air conditioning throughout
• Pet friendly (subject to approval)
• Enjoy Chef-prepared lunch and dinner or enjoy delicious home cooked meals in your apartment
• 24 hour on site staff & emergency call system
• Village bus and social activities on site
• Ducted reverse cycle air-conditioning
• Opportunity to take part in regular activities and outings
• No ACAT or assets assessment required
Glengara Care Apartments offer premium care within the Glengara community, nestled in Glenning Valley, just 1 hour north of Sydney on the NSW Central Coast. Your new home is part of the village, so you can enjoy its excellent amenities.
Our on-site staff is available 24/7 to assist with daily living and ensure safety and well-being. We offer a range of healthcare services and activities that promote engagement and mental and physical activity. From arts and crafts to exercise and outdoor excursions, there's something for everyone. We aim to enhance residents' quality of life, promote independence, and foster community.
Glengara Care is close to transportation, shopping, and medical facilities, ensuring easy access to the community.
Don't miss this opportunity to live in a community where you can receive the care you need while maintaining your independence. Contact us to book your private appointment.
Prices are correct at time of upload and are subject to change. You will pay a departure fee when you leave this village. Images are indicative only.
Property Features
Features
- Retirement Village
- Retirement Property
Property Location
Explore the neighborhood and see what's nearby
- New property alerts
- Save searches & properties
- Newsletter
- My property value
Join the new member centre