Properties for Sale, Rent and Share
3993 Properties
-
-
Enfield, Northern Adelaide, SA
-
Coffs Harbour, North Coast, NSW
-
Mowbray, Launceston and North East TAS, TAS
-
Claremont, Hobart, TAS
-
Bonnells Bay, Newcastle and Lake Macquarie, NSW
-
Leederville, Inner Perth, WA
-
Port Lincoln, Port Augusta, SA
-
Bobs Farm, Port Stephens, NSW
-
Forrestfield, South East Perth, WA
-
Parkwood, Gold Coast, QLD
-
Mornington, Mornington Peninsula, VIC
-
Mornington, Mornington Peninsula, VIC
-
Greenwich, Lower North Shore, NSW
Beautifully Transformed Residence in a Serene Bushland Setting
0046/6 Ulonga Ave, Greenwich 2065
Lower North Shore, NSWPrice Guide $3,300,000 - $3,350,000
-
Parkwood, Gold Coast, QLD
-
Parkwood, Gold Coast, QLD
-
Strathalbyn, South East SA, SA
-
St Ives, Upper North Shore, NSW
-
Brighton East, Inner South Melbourne, VIC
-
Ulladulla, South Coast NSW, NSW
-
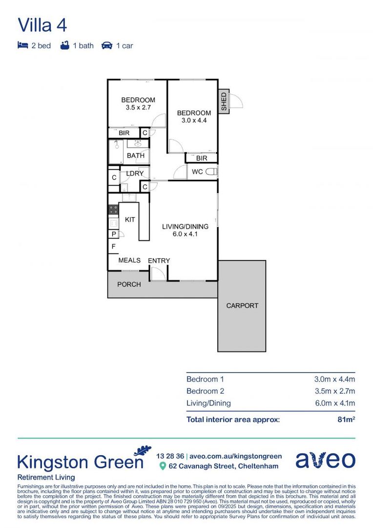
Cheltenham, Inner South Melbourne, VIC
-
Templestowe, Inner East Melbourne, VIC
-
East Lindfield, Upper North Shore, NSW
Cozy & warm apartment
240/2 Ulmarra Place, East Lindfield 2070
Upper North Shore, NSW$329,000 - Retirement
-
Windang, Illawarra, NSW
-
Toorak, Inner Melbourne, VIC
Showing 3650-3675 of 3993 results