Properties for Sale, Rent and Share in QLD
846 Properties
-
-
Pimpama, Gold Coast, QLD
Site 314 - Established Hamilton 1
314/7 Halcyon Drive, Pimpama 4209
Gold Coast, QLDOffers Over $915,000
-
Harristown, Toowoomba, QLD
-
Earlville, Cairns, QLD
Two bedroom villa in quiet cul-de-sac
17/1 Telford Street, Earlville 4870
Cairns, QLD$475,000 - Retirement
-
Taringa, West Brisbane, QLD
-
Pelican Waters, Sunshine Coast, QLD
-
Bundaberg North, Bundaberg, QLD
-
Bli Bli, Sunshine Coast, QLD
Site 159 - Established Yaroomba
159/27 Waigani Street, Bli Bli 4560
Sunshine Coast, QLDOffers over $1,490,000
-
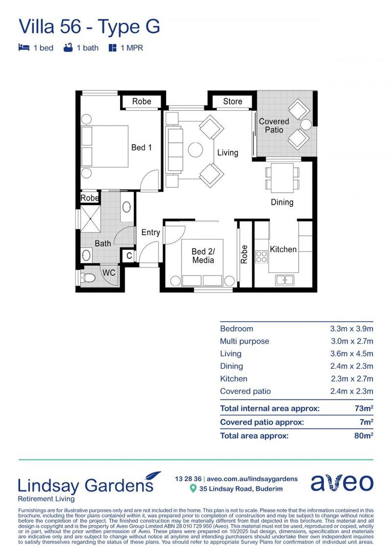
Buderim, Sunshine Coast, QLD
-
Albany Creek, Moreton Bay South, QLD
-
Forest Glen, Sunshine Coast, QLD
-
Parkwood, Gold Coast, QLD
-
Upper Coomera, Gold Coast, QLD
-
Urangan, Fraser Coast, QLD
-
Tarragindi, South Brisbane, QLD
-
Carseldine, North Brisbane, QLD
-
Pacific Paradise, Sunshine Coast, QLD
-
Taringa, West Brisbane, QLD
-
Nirimba, Sunshine Coast, QLD
-
Buderim, Sunshine Coast, QLD
-
Burpengary East, Moreton Bay North, QLD
-
Buderim, Sunshine Coast, QLD
-
Yeronga, South Brisbane, QLD
-
Yeronga, South Brisbane, QLD
-
Yeronga, South Brisbane, QLD
Showing 500-525 of 846 results