Properties for Sale, Rent and Share in QLD
832 Properties
-
-
Taringa, West Brisbane, QLD
-
Nirimba, Sunshine Coast, QLD
-
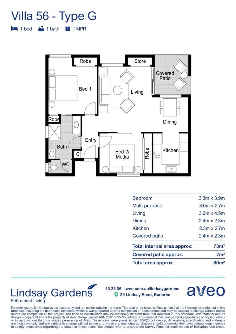
Buderim, Sunshine Coast, QLD
-
Buderim, Sunshine Coast, QLD
-
Yeronga, South Brisbane, QLD
-
Yeronga, South Brisbane, QLD
-
Yeronga, South Brisbane, QLD
-
Yeronga, South Brisbane, QLD
-
Taringa, West Brisbane, QLD
Top-level one-bedroom serviced apartment
109/1 Moore Street, Taringa 4068
West Brisbane, QLD$299,000 – Retirement
-
Urangan, Fraser Coast, QLD
-
Bargara, Bundaberg, QLD
-
Miami, Gold Coast, QLD
-
Palmview, Sunshine Coast, QLD
-
Yeronga, South Brisbane, QLD
-
Yeronga, South Brisbane, QLD
-
Ormiston, East Brisbane, QLD
-
Manly, East Brisbane, QLD
-
Redland Bay, East Brisbane, QLD
-
Ashmore, Gold Coast, QLD
Sunny and bright assisted living apartment
245/74 Wardoo Street, Ashmore 4214
Gold Coast, QLD$325,000 - Retirement
-
Logan Reserve, Logan & Beaudesert, QLD
-
Bli Bli, Sunshine Coast, QLD
Site 60 - Established Coolum
60/27 Waigani Street, Bli Bli 4560
Sunshine Coast, QLDOffers over$950,000
-
Tarragindi, South Brisbane, QLD
-
Palmview, Sunshine Coast, QLD
-
Springfield, Ipswich, QLD
Spacious and bright two-bedroom apartment
1206/2 Symphony Way, Springfield 4300
Ipswich, QLD$475,000 – Retirement
Showing 525-550 of 832 results