Properties for Sale, Rent and Share in QLD
851 Properties
-
138/1 McClintock Drive, Murrumba Downs 4503
-
Durack, West Brisbane, QLD
Serene top-floor one-bedroom apartment
P01/356 Blunder Road, Durack 4077
West Brisbane, QLD$310,000 - Retirement
-
Bli Bli, Sunshine Coast, QLD
-
Coombabah, Gold Coast, QLD
-
Earlville, Cairns, QLD
Great-sized two-bedroom villa with garage
74/1 Telford Street, Earlville 4870
Cairns, QLD$565,000 - Retirement
-
Durack, West Brisbane, QLD
-
Sunnybank Hills, South Brisbane, QLD
-
Sunnybank Hills, South Brisbane, QLD
-
Bli Bli, Sunshine Coast, QLD
Site 230 - Established Peregrine
230/1 Halcyon Way, Bli Bli 4560
Sunshine Coast, QLDOffers Over $1,270,000
-
Ormiston, East Brisbane, QLD
-
Ormiston, East Brisbane, QLD
-
Durack, West Brisbane, QLD
Light filled one-bedroom plus study villa
B20/356 Blunder Road, Durack 4077
West Brisbane, QLD$375,000 - Retirement
-
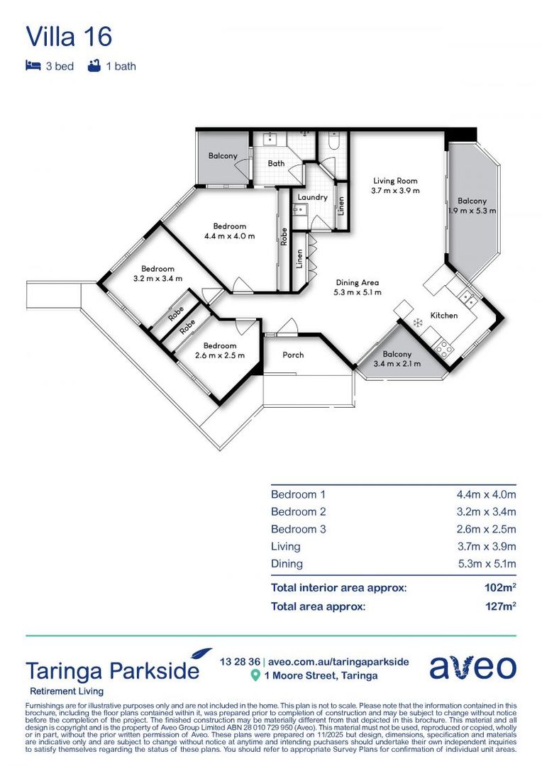
Taringa, West Brisbane, QLD
-
Bargara, Bundaberg, QLD
Enjoy the good life, at Carlyle Gardens
Carlyle Gardens
3 Carlye Court , Bargara 4670
Bundaberg, QLDIndependent Living Villas from $515,000 - $765,000
-
Ormiston, East Brisbane, QLD
-
Burpengary East, Moreton Bay North, QLD
-
Buderim, Sunshine Coast, QLD
Site 316 - Established Kuranda
316/2 Retreat Drive, Buderim 4556
Sunshine Coast, QLDOffers Over $1,275,000
-
Burpengary East, Moreton Bay North, QLD
-
Hope Island, Gold Coast, QLD
Site 166 - Established Saumarez
166/1 Halcyon Way, Hope Island 4212
Gold Coast, QLDOffers Over $1600,000
-
Hope Island, Gold Coast, QLD
Site 143 - Established Special Design
143/1 Halcyon Way, Hope Island 4212
Gold Coast, QLDOffers Over $1,325,000
-
Buderim, Sunshine Coast, QLD
-
Buderim, Sunshine Coast, QLD
-
Taigum, North Brisbane, QLD
-
Rothwell, Moreton Bay North, QLD
2 Bedroom Villas - The Village Redcliffe
The Village Redcliffe
33 Buchanan Street, Rothwell 4022
Moreton Bay North, QLD2 Bedroom, from $560K - 3 Bedroom, from $600K
-
Rothwell, Moreton Bay North, QLD
Showing 300-325 of 851 results