Be the first to receive the latest updates in retirement property with our newsletter
Retirement villages and properties in NSW
1155 Properties
-
-
Bayview, Northern Beaches, NSW
-
Casula, South West Sydney, NSW
-
Murwillumbah, Richmond - Tweed, NSW
-
Erina, Central Coast, NSW
-
Mona Vale, Northern Beaches, NSW
-
Erina, Central Coast, NSW
-
Erina, Central Coast, NSW
-
Doonbah, Northern Rivers, NSW
-
Hallidays Point, Mid North Coast, NSW
-
Thrumster, Mid North Coast, NSW
-
Wyoming, Central Coast, NSW
-
Wyoming, Central Coast, NSW
-
Banora Point, Richmond - Tweed, NSW
-
Chatswood, Lower North Shore, NSW
-
Wyoming, Central Coast, NSW
-
Northmead, Parramatta, NSW
-
Wyoming, Central Coast, NSW
-
Waverley, Eastern Suburbs Sydney, NSW
-
Murwillumbah, Richmond - Tweed, NSW
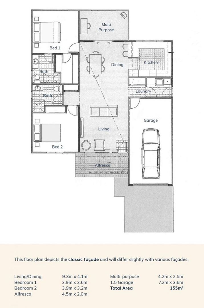
Ground-floor 2-bedroom villa
FA009/1 Ingram Place, Murwillumbah 2484
Richmond - Tweed, NSW$319,000 - Retirement
-
Doonbah, Northern Rivers, NSW
-
Kew, Mid North Coast, NSW
-
Tweed Heads West, Richmond - Tweed, NSW
-
Belrose, Northern Beaches, NSW
-
Forster, Mid North Coast, NSW
Showing 975-1000 of 1155 results