From $660,000
2
2
2
Blue Gum
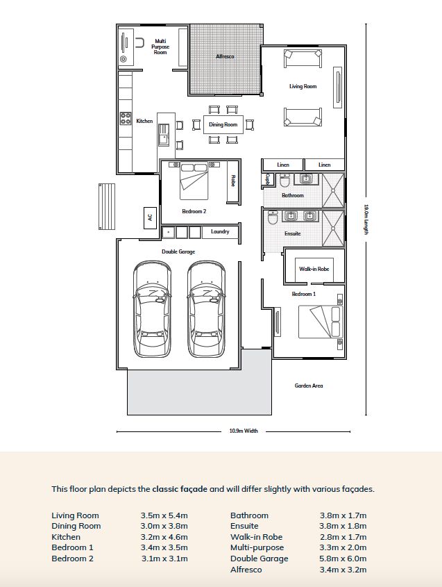
This special home has been designed to maximise all the advantages of its desirable location. Separate lounge and dining areas ensure abundant room to entertain, soaring ceilings enhance the sense of space and ample storage makes downsizing that much easier. The private master bedroom is set well away to create a quiet sanctuary while a multi-purpose room is the perfect study or retreat you’ve been dreaming of.
- Main bed with oversized ensuite, WIR
- Flexible multi-purpose room
- Separate lounge and dining spaces
- Dramatic soaring ceilings
- Abundant storage space throughout
- Perfectly designed for downsizers
Property Features
Features
- Garage or Parking Space
- Pets Allowed
Facilities
- Swimming Pool
- Tennis Courts
- Recreation Centre / Clubhouse
- Caravan Parking / Storage
Supports
- Independent Living
- Community Bus
Locations
- Medical Services Nearby
- Close to Transport
- Close to Beach
- Clubs Nearby
Property Location
Explore the neighborhood and see what's nearby
- New property alerts
- Save searches & properties
- Newsletter
- My property value
Join the new member centre