From $690,000
2
2
2
Lighthouse
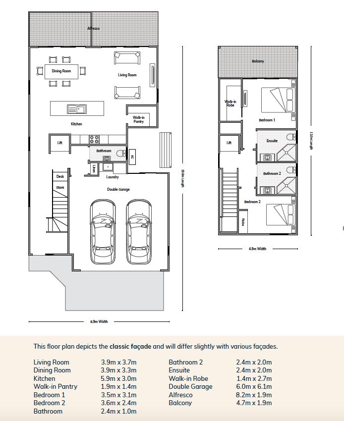
Enjoy sunsets over the natural bushland from your private master suite balcony, gracing the upper level of this architecturally designed two-level home that comes complete with lift access. The layout takes advantage of the extensive alfresco entertaining areas, accessed via double sliding doors from both the living and dining rooms. With two bedrooms, two bathrooms and a powder room, there is plenty of amenities.
- Generous two-level design
- Spacious alfresco entertaining area
- Upper-level main suite with balcony
- Lift for easy accessibility
- Additional powder room for guests
Property Features
Features
- Garage or Parking Space
- Pets Allowed
Facilities
- Swimming Pool
- Tennis Courts
- Recreation Centre / Clubhouse
- Caravan Parking / Storage
Supports
- Independent Living
- Community Bus
Locations
- Medical Services Nearby
- Close to Transport
- Close to Beach
- Clubs Nearby
Property Location
Explore the neighborhood and see what's nearby
- New property alerts
- Save searches & properties
- Newsletter
- My property value
Join the new member centre