Contact Provider
Enquire
2
2
1
015/11 Resort Road, Kew 2439 Mid North Coast, NSW
Contact Provider
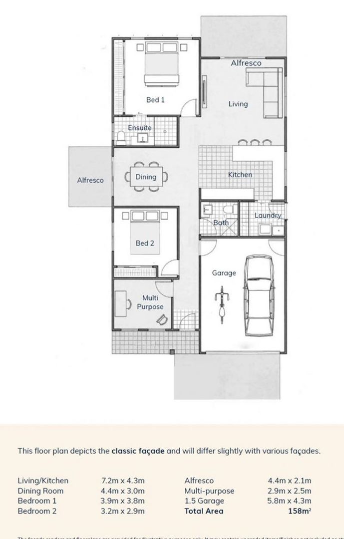
This functional home features ample space.
The Bellinger showcases separate dining and living spaces in an open plan design that flow to two covered outdoor patios. A rear master bedroom caters for maximum privacy. This functional home features ample space, a modern kitchen design and the ever popular one and a half garage for a single vehicle plus additional storage or workbench.
Air Conditioning
Spacious ensuite
Stone benchtop
Maintenance Free yard
Air Conditioning
Spacious ensuite
Stone benchtop
Maintenance Free yard
Property Features
Features
- Retirement Village
- Retirement Property
- Study
Property Location
Explore the neighborhood and see what's nearby
- New property alerts
- Save searches & properties
- Newsletter
- My property value
Join the new member centre