From $495,000

2

2

2
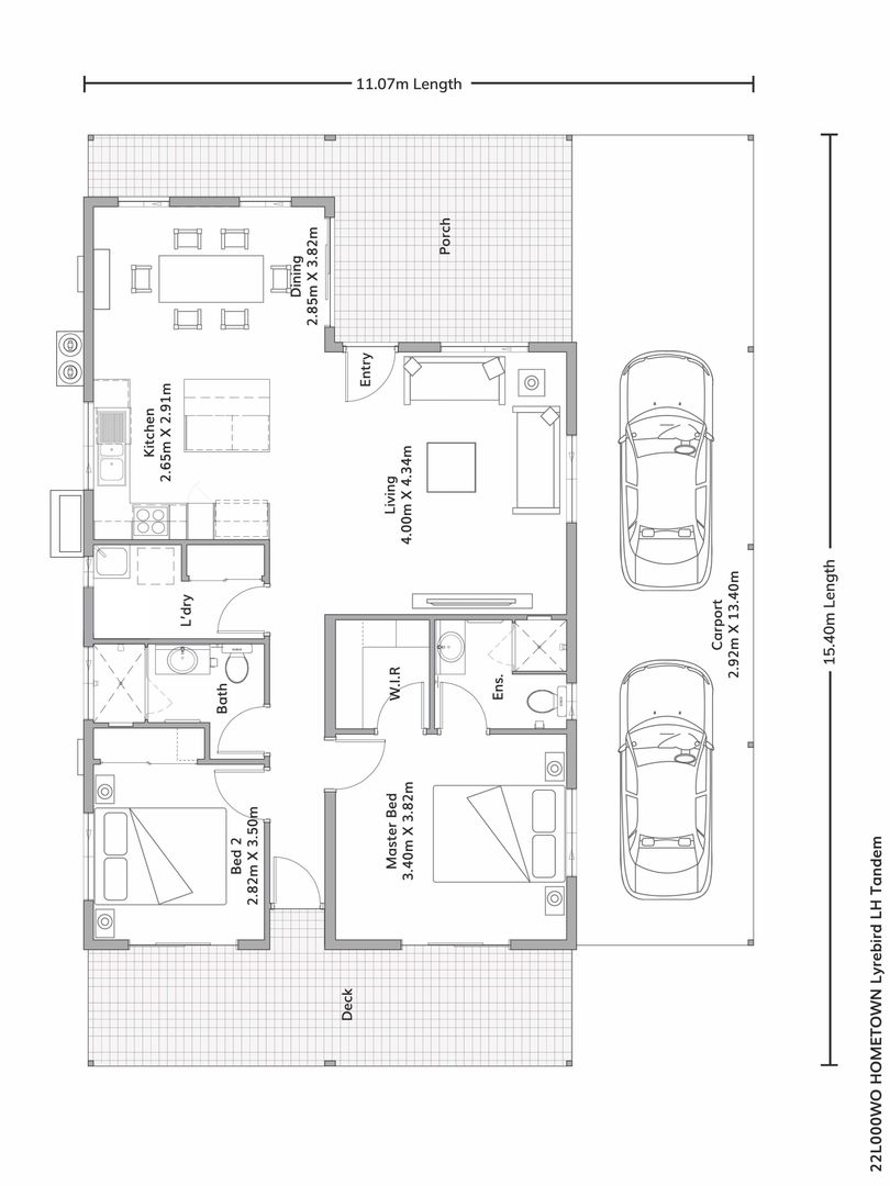
Lyrebird
Step into luxurious living at The Lyrebird. This spacious open plan lounge sets the stage for your dream lifestyle. Two inviting decks create a refreshing oasis, perfect for hosting barbecues or enjoying a quiet moment with a good book. The open plan design seamlessly combines dining, kitchen, and living areas, offering a comfortable and stylish living experience.
Features include:
- Versatile Study Room
- Double undercover carport
- Separate laundry
- Ceiling fans and air con
- Open plan design
The Pines Over 50s living Woolgoolga - A coastal bushland retreat
Say hello to the best of bush and beach. Set alongside Hearnes Lake, The Pines offers an enviable over 50’s lifestyle, within walking distance of the beach. Find the freedom to unwind, socialise, or explore in this well-appointed, relaxed, coastal community.
Enjoy the best of bush side coastal living
Start your morning with a stroll to the shore. Experience an invigorating dip in the ocean or come back and swim a few laps in our pool. Enjoy a game of tennis with neighbours, or save the competitions for the game room. If your muscles are sore from one of the local hiking spots, unwind in the spa before dinner. There’s always lots to do at The Pines.
For more information or to book a tour please contact our team on (02) 9055 8674.
Explore the benefits of land lease living:
- No stamp duty
- Retain capital gains
- No exit fees
- No council rates
Features
- Garage or Parking Space
- No Steps
- Pets Allowed
- Secure Access
Facilities
- Swimming Pool
- Tennis Courts
- Recreation Centre / Clubhouse
- Caravan Parking / Storage
Supports
- Independent Living
Locations
- Close to Beach
- New property alerts
- Save searches & properties
- Newsletter
- My property value
Join the new member centre
