Contact Provider
Enquire
2
2
2
136/19 Glenfern Avenue, Thrumster 2444 Mid North Coast, NSW
Contact Provider
Find sanctuary between the country & the sea
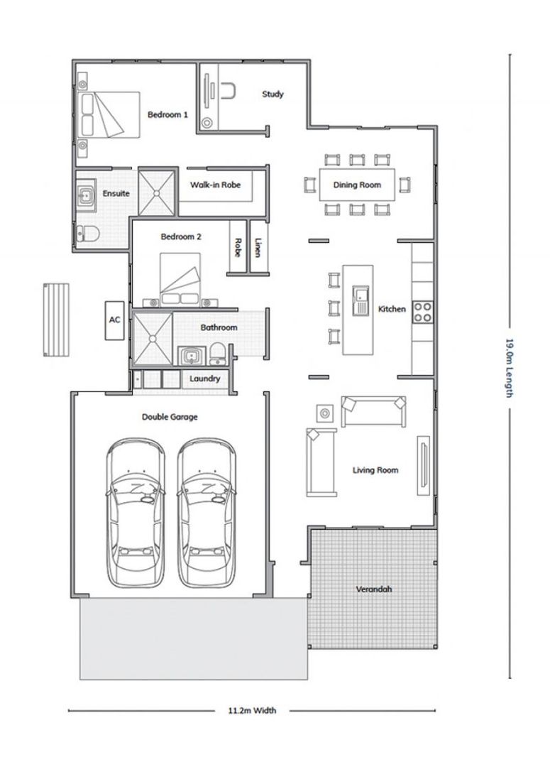
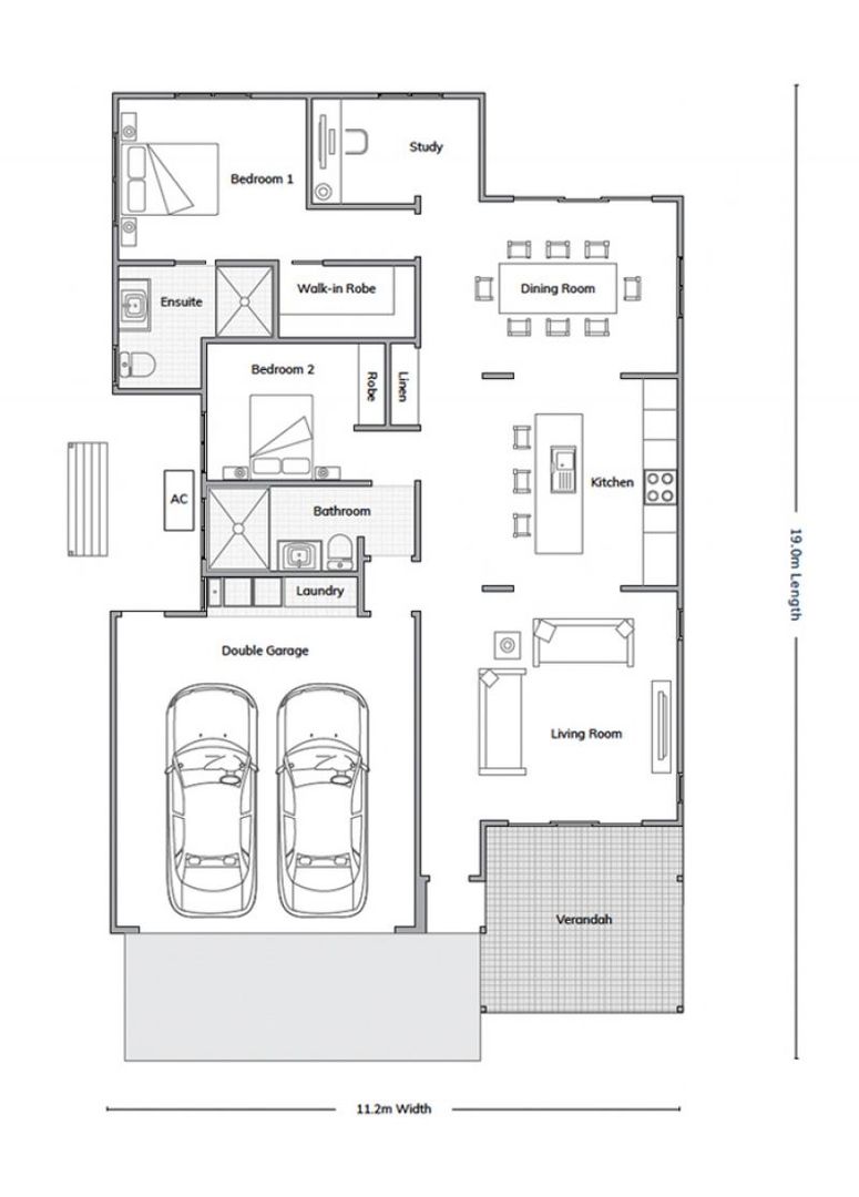
Glenfern Single-level with a spacious north facing alfresco area. King-sized master with walk-in robe/ ensuite. Large kitchen with island and quality appliances. Open plan light-filled living and dining spaces. Study or multipurpose room. Guest bedroom with built-in robe and bathroom. High raked ceilings add drama, dormer window harnessing sunshine. Abundant storage space throughout.
Ducted A/C, ceiling fans
Resort style pool, gym, spa
Gated Community, bush outlook
Double garage
Pool tables, lawn bowls
Ducted A/C, ceiling fans
Resort style pool, gym, spa
Gated Community, bush outlook
Double garage
Pool tables, lawn bowls
Property Features
Features
- Retirement Village
- Retirement Property
- Study
Property Location
Explore the neighborhood and see what's nearby
- New property alerts
- Save searches & properties
- Newsletter
- My property value
Join the new member centre