$1,100,000
2
2
1
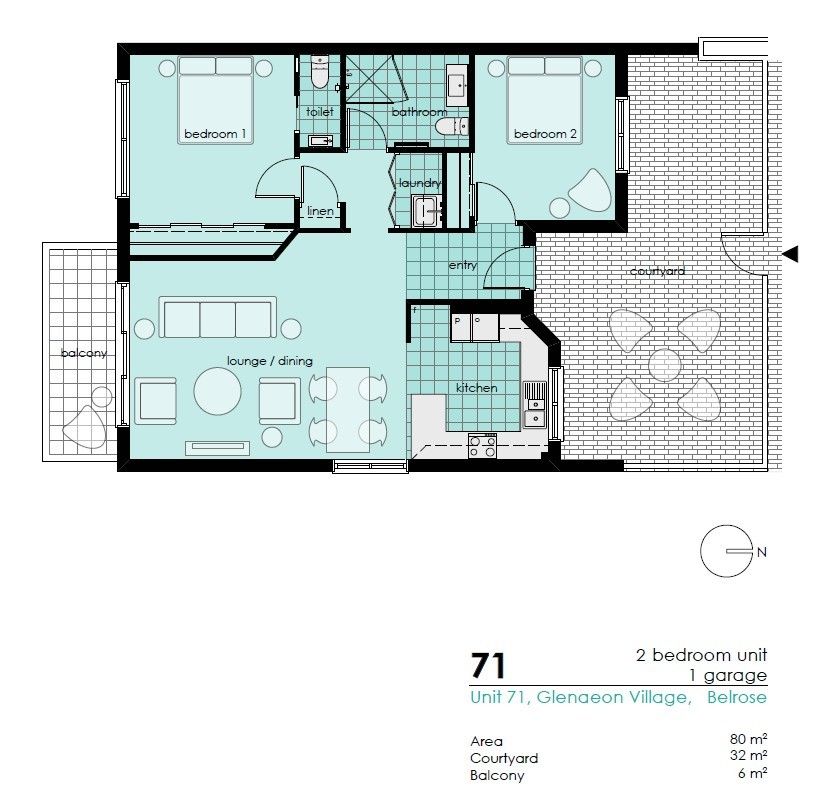
071/207 Forest Way, Belrose 2085 Northern Beaches, NSW
$1,100,000
Elegance with Alfresco Appeal
Soak up the northern sun from your private courtyard in this beautifully elevated two-bedroom unit at Glenaeon, where leafy views and water glimpses set the scene for relaxed, low-maintenance living. Positioned in the heart of Belrose, this modern home blends open-plan ease with quiet village charm just minutes from shops, parks, and the coast.
Key highlights of this home include:
• North-facing courtyard with water glimpses and leafy garden outlook • Open-plan living and dining with ducted air conditioning throughout • Contemporary kitchen with stone benchtops and quality appliances • Two spacious bedrooms, master with built-in wardrobe • Stylish powder room and separate internal laundry • Secure single lock-up garage with convenient external access • Lift access, emergency call system, and solar panels for efficiency • Pet-friendly village with pool, gym, and vibrant community centre
About Glenaeon Retirement Village by Keyton
Set high in Belrose on the Northern Beaches, Glenaeon is a vibrant Over 55’s retirement village where panoramic ocean views enrich your wellbeing. Surrounded by acres of native bushland, overlooking the treetop canopy, Glenaeon instils a feeling of space, peace and privacy. It’s the perfect balance of natural tranquillity and vibrant community, in a place defined by connection.
Key highlights of Glenaeon Retirement Village include:
• Indoor Heated Swimming Pool • Alfresco Dining Area • Lounge • Indoor Bowls • Bar • Outdoor Terrace • Gymnasium • Social Activities & Clubs • Hairdressing Salon / Barber • Barbecue • Community Centre / Clubhouse
Don’t miss this opportunity to make this home your own. Enquire today and book a tour.
You must be over 55 years of age to purchase a home in this Village.
*Pricing, availability of services and facilities provided in the village advertised are correct at the time of listing, but subject to change without notice. Photographs are used for illustrative purposes. Some images depict items not provided by Keyton within the units such as furniture and other decorative items. If the contract option chosen by you requires to do so, you will have to pay a departure fee when you leave this village, which will impact on the capital gains received when leaving the village, and/or you will have to share any capital gains received with the operator of this village. Keyton Realty (NSW) Pty Ltd ABN 27 138 535 823.
Property Features
Features
- Retirement Village
- Retirement Property
- Modern Kitchen
Other
- Courtyard
- Open plan living
- Modern appliances
- North facing
Property Location
Explore the neighborhood and see what's nearby
- New property alerts
- Save searches & properties
- Newsletter
- My property value
Join the new member centre