$510,000
Enquire
3
2
2
159/2 Flinders Way, Wodonga 3690 Murray, VIC
$510,000
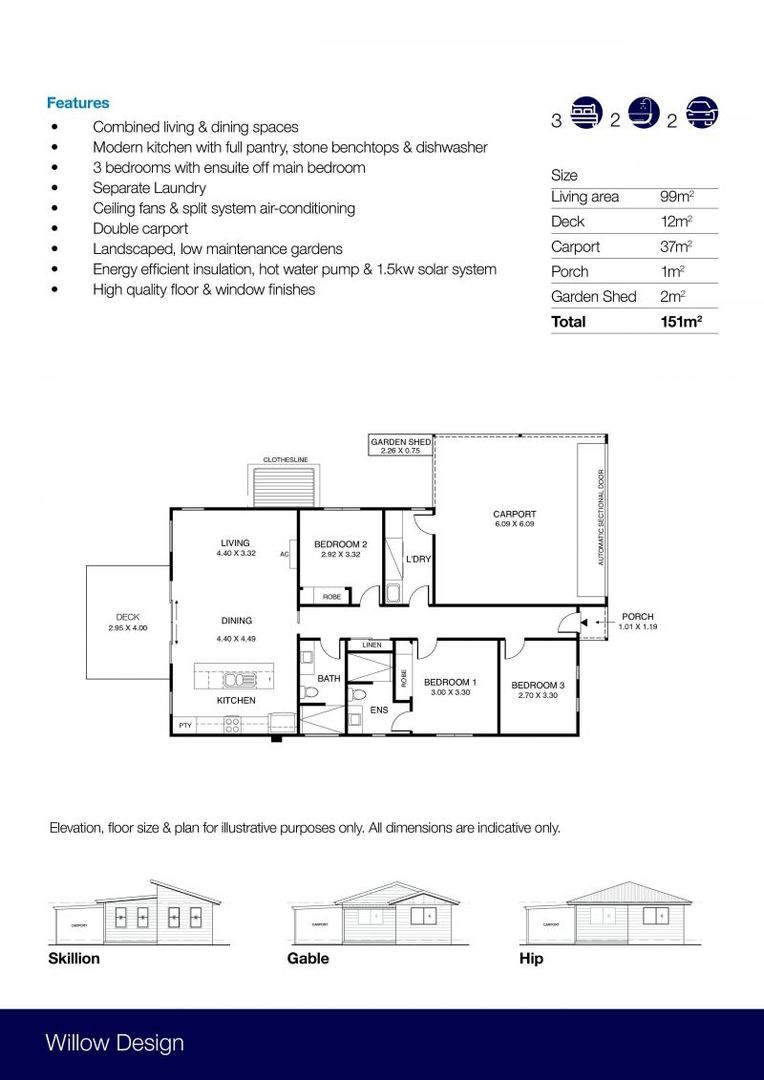
New Build | 3 Bed Willow Design
OPEN INSPECTION
Thursday and Friday
10:00am-2:00pm
A popular design, the Willow II is a thoughtfully curated 3 bedroom home, complemented by a large double carport.
The well-appointed home features well-proportioned rooms with a contemporary feel throughout.
This open-plan residence enjoys a modern kitchen with stainless steel appliances and stone benchtops. The entertaining space extends to an outdoor deck set among a private garden.
Features include:
- Modern kitchen equip with Westinghouse appliances
- Silicone free benchtops
- Master bedroom and ensuite
- Built in robes
- Separate laundry
- Entertaining deck
- Low maintenance front and rear garden
- Garden shed
- Direct garage entry
- Broadband
- Reverse cycle air conditioning
- Ceiling fans
- Automatic sectional garage door
- Solar
- Heat Pump Water
- Gas free home or electric appliances
Ideally located in West Wodonga, Aspen Lifestyle Wodonga offers the perfect setting for an over-50s land lease community, set against the picturesque backdrop of the West Wodonga Hills.
Residents enjoy access to a variety of communal facilities, including a large Clubhouse with a expansive kitchen, library, social bar, gym, and pool table. The village also features a tree-lined nature reserve, community garden and BBQ area. Designed with a variety of amenities, Aspen Lifestyle Wodonga provides opportunities to socialise, relax and enjoy life. Additionally, the gated entrance adds an extra layer of security for residents.
A key attraction of Aspen Lifestyle homes is the high-quality construction. The master-built homes offer residents a variety of design options with light-filled, practical floor plans and quality finishes. Aspen ensures the homes meet residents' needs now and in the future. All homes are designed and built with aging considered, providing security and peace of mind.
Discover the further advantages of land lease living with no exit fees, no stamp duty, no council rates, affordable site rental fees and eligibility for government rental assistance.
Please note that images and floor plans are for indicative purposes to provide a visual representation of the house design. Colours and finishes are subject to change.
Contact Alyssa at 0459 555 124 for more information and to arrange an inspection of our display home.
Thursday and Friday
10:00am-2:00pm
A popular design, the Willow II is a thoughtfully curated 3 bedroom home, complemented by a large double carport.
The well-appointed home features well-proportioned rooms with a contemporary feel throughout.
This open-plan residence enjoys a modern kitchen with stainless steel appliances and stone benchtops. The entertaining space extends to an outdoor deck set among a private garden.
Features include:
- Modern kitchen equip with Westinghouse appliances
- Silicone free benchtops
- Master bedroom and ensuite
- Built in robes
- Separate laundry
- Entertaining deck
- Low maintenance front and rear garden
- Garden shed
- Direct garage entry
- Broadband
- Reverse cycle air conditioning
- Ceiling fans
- Automatic sectional garage door
- Solar
- Heat Pump Water
- Gas free home or electric appliances
Ideally located in West Wodonga, Aspen Lifestyle Wodonga offers the perfect setting for an over-50s land lease community, set against the picturesque backdrop of the West Wodonga Hills.
Residents enjoy access to a variety of communal facilities, including a large Clubhouse with a expansive kitchen, library, social bar, gym, and pool table. The village also features a tree-lined nature reserve, community garden and BBQ area. Designed with a variety of amenities, Aspen Lifestyle Wodonga provides opportunities to socialise, relax and enjoy life. Additionally, the gated entrance adds an extra layer of security for residents.
A key attraction of Aspen Lifestyle homes is the high-quality construction. The master-built homes offer residents a variety of design options with light-filled, practical floor plans and quality finishes. Aspen ensures the homes meet residents' needs now and in the future. All homes are designed and built with aging considered, providing security and peace of mind.
Discover the further advantages of land lease living with no exit fees, no stamp duty, no council rates, affordable site rental fees and eligibility for government rental assistance.
Please note that images and floor plans are for indicative purposes to provide a visual representation of the house design. Colours and finishes are subject to change.
Contact Alyssa at 0459 555 124 for more information and to arrange an inspection of our display home.
Property Features
Features
- Pets Allowed
- Retirement Village
- Air Conditioning
- Broadband
Other
- Heating
Property Location
Explore the neighborhood and see what's nearby
- New property alerts
- Save searches & properties
- Newsletter
- My property value
Join the new member centre