$175,000
Enquire
1
1
-
Banskia Floorplan/7A Wheaton Street, South Plympton 5038 South Adelaide, SA
$175,000
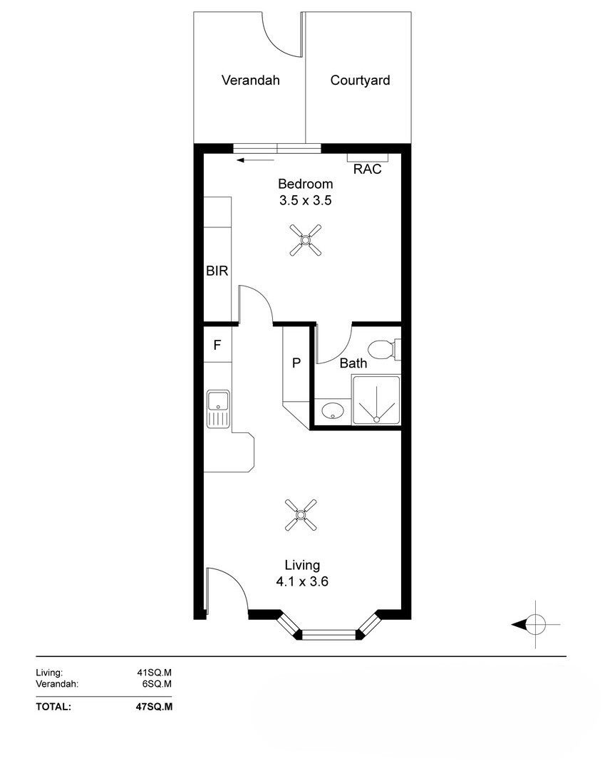
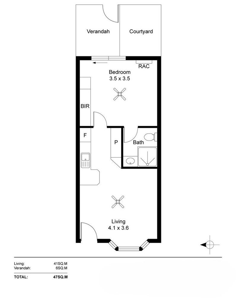
'Banksia' Floorpan
The “Banksia” design at Vermont Estate is a freshly updated one-bedroom Serviced Apartment, ready to move straight in. Positioned just steps from the dining room and community spaces, it offers easy access to daily meals and activities, while a private rear courtyard provides a quiet place to sit outdoors.
Key highlights of this home include:
• One-bedroom serviced apartment – “Banksia” design
• Newly carpeted living area and bedroom
• Freshly painted interiors
• Bay window in living area
• Kitchenette with fridge and generous storage
• Bedroom with built-in robe and split system air conditioning
• Private ensuite bathroom
• Sliding doors to partially covered rear courtyard
• Weekly cleaning and heavy laundry included
About Vermont Estate by Keyton
Nestled in a well-established area of Adelaide’s leafy southwest, this beautiful Over 55’s retirement village is a place you’ll be proud to call home. At Vermont Estate, you’ll enjoy the fresh air, peaceful streets and pristine beaches synonymous with Adelaide’s laid-back lifestyle, in the heart of a welcoming community.
Convenience is key at this contemporary village where you have everything you need on your doorstep. Find golf courses, cinemas, shops and boutiques within easy reach, and the beauty of Glenelg’s glittering beaches just 15 minutes away.
Amenities available at this Retirement Village include:
• Barbecue
• Billiards Table
• Community Centre / Clubhouse
• Craft & Hobby Room
• Dining Facilities
• Emergency Call System
• Games Room
• Green Waste Collection
• Hairdressing Salon / Barber
You must be over 55 years of age to purchase a property at this retirement village.
Don’t miss this opportunity to make this home your own. Enquire today and book a tour.
Pricing, availability of services and facilities provided in the village advertised are correct at the time of listing, but subject to change without notice. Carport subject to availability.
Photographs are used for illustrative purposes. Some images depict items not provided by Keyton within the units such as furniture and other decorative items.
Keyton Realty (SA) Pty Ltd ABN 42 618 485 644.
Key highlights of this home include:
• One-bedroom serviced apartment – “Banksia” design
• Newly carpeted living area and bedroom
• Freshly painted interiors
• Bay window in living area
• Kitchenette with fridge and generous storage
• Bedroom with built-in robe and split system air conditioning
• Private ensuite bathroom
• Sliding doors to partially covered rear courtyard
• Weekly cleaning and heavy laundry included
About Vermont Estate by Keyton
Nestled in a well-established area of Adelaide’s leafy southwest, this beautiful Over 55’s retirement village is a place you’ll be proud to call home. At Vermont Estate, you’ll enjoy the fresh air, peaceful streets and pristine beaches synonymous with Adelaide’s laid-back lifestyle, in the heart of a welcoming community.
Convenience is key at this contemporary village where you have everything you need on your doorstep. Find golf courses, cinemas, shops and boutiques within easy reach, and the beauty of Glenelg’s glittering beaches just 15 minutes away.
Amenities available at this Retirement Village include:
• Barbecue
• Billiards Table
• Community Centre / Clubhouse
• Craft & Hobby Room
• Dining Facilities
• Emergency Call System
• Games Room
• Green Waste Collection
• Hairdressing Salon / Barber
You must be over 55 years of age to purchase a property at this retirement village.
Don’t miss this opportunity to make this home your own. Enquire today and book a tour.
Pricing, availability of services and facilities provided in the village advertised are correct at the time of listing, but subject to change without notice. Carport subject to availability.
Photographs are used for illustrative purposes. Some images depict items not provided by Keyton within the units such as furniture and other decorative items.
Keyton Realty (SA) Pty Ltd ABN 42 618 485 644.
Property Features
Features
- Modern Kitchen
Other
- Modern appliances
Property Location
Explore the neighborhood and see what's nearby
- New property alerts
- Save searches & properties
- Newsletter
- My property value
Join the new member centre