$790,000
2
1
1
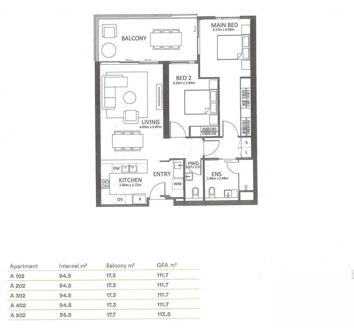
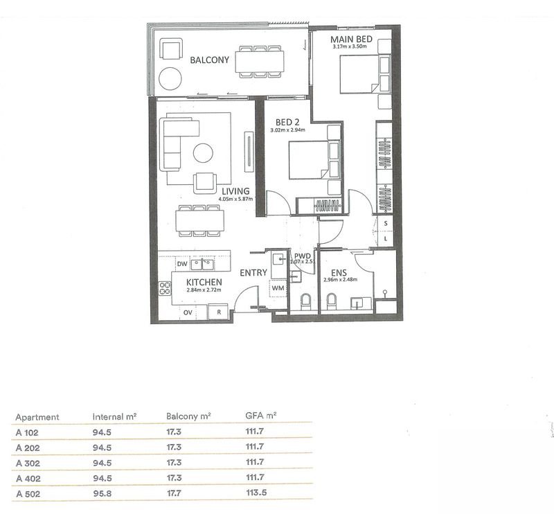
402/48 Hampden Street, Ascot 4007 Brisbane Inner City, QLD
$790,000
East-Facing Apartment with Patio Living
Morning light spills across the open-plan living area, drawing you out to a covered patio where the day begins. Inside, high ceilings and a calm palette of tile and carpet create a sense of space and ease, while a modern kitchen anchors the home with clean lines and everyday functionality. Two well-appointed bedrooms offer comfort and privacy, with an ensuite and thoughtful storage completing a layout designed for stylish, low-maintenance living.
Key highlights of this home include:
• East-facing orientation welcoming soft morning light • Covered patio for sheltered outdoor enjoyment • Open-plan living with high ceilings enhancing space • Modern kitchen with sleek benchtops and appliances • Two bedrooms with built-in wardrobes • Contemporary bathroom plus private ensuite • Ducted heating and reverse cycle air conditioning • Separate laundry for practical daily living
Discover a Life of Luxury and Connection at Bernborough Ascot by Keyton.
Imagine a place where vibrant community living meets the elegance of luxury resort-style comfort – that’s Bernborough Ascot. Designed exclusively for over 55s, this exceptional retirement village combines the tranquillity of open spaces with the convenience of inner-city living, creating a welcoming haven where life feels more connected, more fulfilling, and more inspired.
Exceptional Resort-Style Amenities moments from your door:
• Onsite cafe • The Pavilion Dining and function room • Ascot & Trackside Resident Lounges • Gym and Fitness Studio • Indoor Magnesium Heated Pool and Infrared Sauna • Hair Salon and Consulting Rooms • Bowling Green • Cinema • Art Studio • Library
At Bernborough Ascot, every detail is thoughtfully crafted to enhance your lifestyle with unparalleled convenience:
• Concierge Services • Personalized Health and Wellness Program • Onsite Village Management Team • 24-Hour Emergency Call System
Perfect Location, Endless Possibilities:
Perfectly situated close to Brisbane CBD, the airport, the river, and public transport, Bernborough Ascot places the best of city living right at your doorstep, offering unparalleled access and convenience.
Your New Life Awaits – Don’t Miss Out!
This is more than just a home; it’s a vibrant community where luxury, comfort, and connection come together seamlessly. Secure your place in this exclusive lifestyle today. Enquire now and book a personalised tour and discover how you can live your best life today!
*Pricing and availability advertised are correct at the time of printing but subject to change without notice. Information about the services and facilities provided in the village is correct at the time of printing but may change. Photographs are for illustrative purposes. Some images may depict renders and items not provided by Keyton within the units such as furniture and other decorative items. Published by Keyton Realty (QLD) Pty Ltd ABN 25 138 535 814
Property Features
Features
- Retirement Village
- Dishwasher
- Retirement Property
Other
- Ducted Heating
- Open plan living
- High Ceilings
- Flooring - tiles
Property Location
Explore the neighborhood and see what's nearby
- New property alerts
- Save searches & properties
- Newsletter
- My property value
Join the new member centre