Retirement Living For Sale in QLD
812 Properties
-
-
Ormiston, East Brisbane, QLD
-
Greenbank, Logan & Beaudesert, QLD
-
Manly, East Brisbane, QLD
-
Redland Bay, East Brisbane, QLD
-
Ashmore, Gold Coast, QLD
Sunny and bright assisted living apartment
245/74 Wardoo Street, Ashmore 4214
Gold Coast, QLD$325,000 - Retirement
-
Logan Reserve, Logan & Beaudesert, QLD
-
Bli Bli, Sunshine Coast, QLD
Site 60 - Established Coolum
60/27 Waigani Street, Bli Bli 4560
Sunshine Coast, QLDOffers over$950,000
-
Tarragindi, South Brisbane, QLD
-
Palmview, Sunshine Coast, QLD
-
Springfield, Ipswich, QLD
Spacious and bright two-bedroom apartment
1206/2 Symphony Way, Springfield 4300
Ipswich, QLD$475,000 – Retirement
-
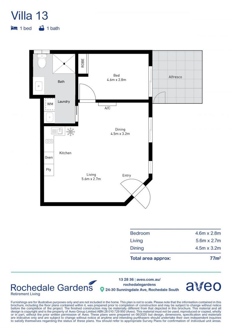
Ashmore, Gold Coast, QLD
Vibrant and spacious two-bedroom villa
13/74 Wardoo Street, Ashmore 4214
Gold Coast, QLD$471,000 - Retirement
-
Moores Pocket, Ipswich, QLD
-
Ashmore, Gold Coast, QLD
-
Bundaberg, Bundaberg, QLD
-
Durack, West Brisbane, QLD
-
Durack, West Brisbane, QLD
-
Avoca, Bundaberg, QLD
-
Durack, West Brisbane, QLD
-
Urangan, Fraser Coast, QLD
-
Benowa, Gold Coast, QLD
-
Twin Waters, Sunshine Coast, QLD
-
Rochedale, South Brisbane, QLD
-
Earlville, Cairns, QLD
-
White Rock, Cairns, QLD
Advertisement
Advertisement
Advertisement
Advertisement
Advertisement
Advertisement
Advertisement
Showing 525-550 of 812 results