SOLD
Enquire
2
2
1
G43/1 Centenary Avenue, Northmead 2152 Parramatta, NSW
SOLD
Free bathroom upgrade and 6 m Free monthly charges - limited time only
Superior style and comfort within a postcard setting
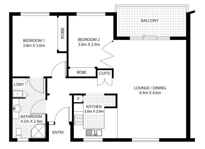
Arguably one of our most picturesque properties, this inviting upper-level two bedroom, two-bathroom unit in the Grevillea cluster, has easy lift access to the ground floor and basement lock-up garage and a captivation outlook from a wide balcony overlooking groomed common central gardens with water feature and shady sitting areas.
- Freshly renovated with new carpets and paint
- Brand new kitchen design with island bench ( under refurbishment)
- Spacious open plan lounge and dining flow easily to the generous undercover balcony with plenty of room for an outdoor setting
- Two double bedrooms with floor-to-ceiling built-in robes
- Master bedroom with ensuite bathroom
- Main bathroom with enclosed internal laundry
- Spacious, well-equipped kitchen with polyurethane cabinets, breakfast bar and oodles of storage
- Peace-of-mind with 24 hour call assistance
- Lock-up garage easily accessed via nearby lift
Phone Zuzana Nevidal on 1300 294 519 and arrange your tour today!
Arguably one of our most picturesque properties, this inviting upper-level two bedroom, two-bathroom unit in the Grevillea cluster, has easy lift access to the ground floor and basement lock-up garage and a captivation outlook from a wide balcony overlooking groomed common central gardens with water feature and shady sitting areas.
- Freshly renovated with new carpets and paint
- Brand new kitchen design with island bench ( under refurbishment)
- Spacious open plan lounge and dining flow easily to the generous undercover balcony with plenty of room for an outdoor setting
- Two double bedrooms with floor-to-ceiling built-in robes
- Master bedroom with ensuite bathroom
- Main bathroom with enclosed internal laundry
- Spacious, well-equipped kitchen with polyurethane cabinets, breakfast bar and oodles of storage
- Peace-of-mind with 24 hour call assistance
- Lock-up garage easily accessed via nearby lift
Phone Zuzana Nevidal on 1300 294 519 and arrange your tour today!
Property Features
Features
- Retirement Village
- Retirement Property
Other
- Balcony
Property Location
Explore the neighborhood and see what's nearby
- New property alerts
- Save searches & properties
- Newsletter
- My property value
Join the new member centre