SOLD
Enquire
2
1
1
A30 Centenary Avenue, Northmead 2152
Parramatta, NSW
SOLD
$5000,- free fee waiver applies. T&C's apply.
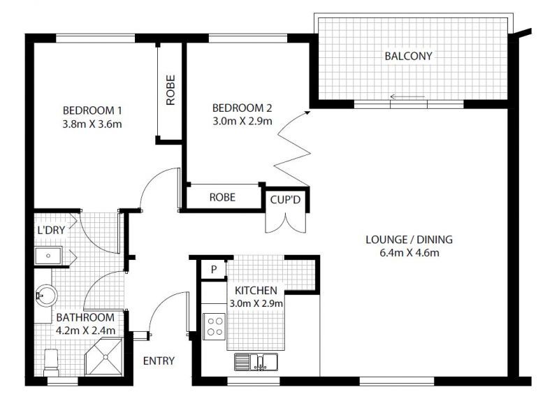
With its gorgeous, elevated outlook over beautifully landscaped common gardens and water feature, this upper level, light-filled two bedroom unit has a warm north-east aspect bathing a large balcony with morning sunshine and offering plenty of space for your favourite outdoor furniture. What's more, the coveted position is an easy stroll to the Centenary Centre amenities including pool and spa, bowling green, cafe, cinema and library.
- Spacious, light-filled combined lounge and dining flow to undercover balcony
- Two quiet and tranquil double bedrooms with floor-to-ceiling built-ins. Master bedroom with internal bathroom access
- Generous U-shape kitchen with polyurethane cabinets, stainless steel
appliances and breakfast bar for casual dining
- Full brick construction and favoured corner position with minimum common walls
- Fully tiled bathroom with enclosed internal laundry
- Reverse cycle air conditioning in living area, 24 hour call assistance
Bed:2
Bath: 1
LUG: 1
Phone Zuzana Nevidal on 1300 294 519 and arrange your tour today!
Australian Unity Retirement Community Independent Living Units at Constitution Hill are sold under a loan lease arrangement. You will have to pay a departure fee when you leave this village. You will have to share any capital gains received with the operator of this village. For more information please email us at: [email protected] or call us on: 1300 160 170
- Spacious, light-filled combined lounge and dining flow to undercover balcony
- Two quiet and tranquil double bedrooms with floor-to-ceiling built-ins. Master bedroom with internal bathroom access
- Generous U-shape kitchen with polyurethane cabinets, stainless steel
appliances and breakfast bar for casual dining
- Full brick construction and favoured corner position with minimum common walls
- Fully tiled bathroom with enclosed internal laundry
- Reverse cycle air conditioning in living area, 24 hour call assistance
Bed:2
Bath: 1
LUG: 1
Phone Zuzana Nevidal on 1300 294 519 and arrange your tour today!
Australian Unity Retirement Community Independent Living Units at Constitution Hill are sold under a loan lease arrangement. You will have to pay a departure fee when you leave this village. You will have to share any capital gains received with the operator of this village. For more information please email us at: [email protected] or call us on: 1300 160 170
Features
- Retirement Village
- Built-ins
- Retirement Property
Other
- Balcony
- Open plan living and pet friendly
- New property alerts
- Save searches & properties
- Newsletter
- My property value
Join the new member centre