SOLD

2

1

1
SOLD
27/16-24 Box Forest Road, Glenroy 3046, North West Melbourne, VIC - Sold
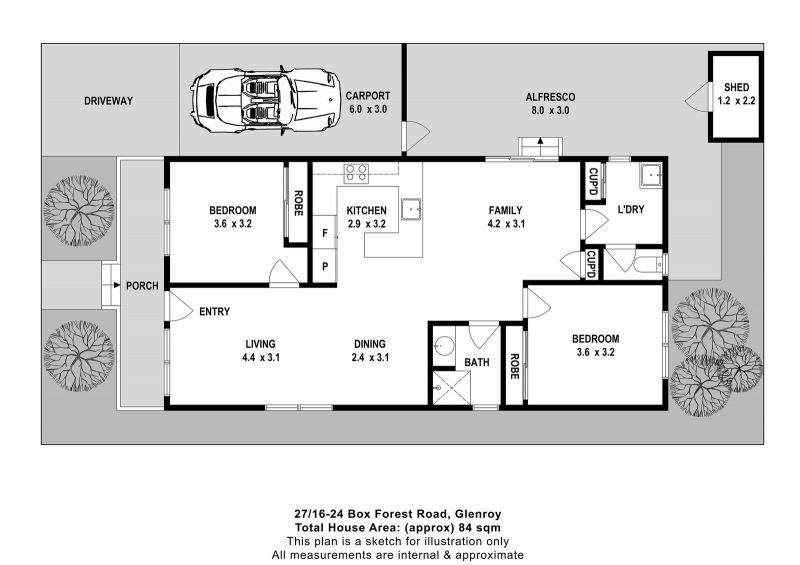
Here's an opportunity not to be missed - an established two-bedroom, double frontage home, perfectly suited for downsizing and renovation.
Step into the large open-plan main living space, where original carpeting in the lounge and bedrooms adds cosy comfort. Air-conditioning to the kitchen and dining areas ensures you stay comfortable throughout the seasons with ceiling fans in the main living areas.
The kitchen retains its classic features including a tiled splash back, breakfast bar, easy care laminate surfaces, complete with electric oven, cooktop, and rangehood. Step outside to the covered alfresco area, boasting a privacy screen and paved backyard - an ideal space for outdoor entertainment.
The two bedrooms offer built-in robes, master with ceiling fan, while lace curtains and drapes lend an elegant touch throughout the home. A single bathroom with a separate toilet caters to everyday needs, complemented by an internal laundry, with linen storage and tub for added convenience.
Additional features include a welcoming front patio, carport with rear storage shed, solar panels for energy efficiency, and security windows and doors for peace of mind.
Don't miss the chance to transform this gem into your dream home.
Home Features:
• Two bedrooms with built-in robe • Single bathroom with separate toilet • Open plan design • Carpet to lounge and bedrooms, vinyl to kitchen and dining • Air-conditioning and ceiling fan to main • Kitchen with breakfast bar and laminate surfaces • Electric oven and cooktop, rangehood • Internal laundry, linen storage • Covered alfresco, paved area to backyard • Front patio • Carport with storage shed to rear • Solar panels installed • Security windows and doors
Federation Village Glenroy presents an exquisite 15 acre, peaceful and pristine community.
Set across 15 acres of landscaped grounds, Ingenia Federation Glenroy is a peaceful community of well-maintained streets studded with small parks, centred around a stunning community centre, outdoor swimming pool and bowling green. The perfect place for those who love connection and activity.
Proudly owned and operated by leading Ingenia Communities, Ingenia Federation offers a relaxed and connected lifestyle among like-minded people. You can live life on your own terms, whether that means getting involved in village life and the local community, making time for family and friends, or enjoying the privacy and comfort of your low-maintenance home.
For many of our residents, downsizing to a lifestyle community frees up more time to enjoy all the above and more.
Living among people at a similar stage of life means opportunities for friendship and connection are always close at hand, and there's a vibrant social calendar of events, activities and interest groups to bring the community together.
This property falls under the Residential Tenancy Act 1977, when purchasing you sign into a 90-year land lease. This advertisement is for the dwelling only which is in an Independent Lifestyle Village.
*Price is based upon owning your own home and entering into a site agreement for a weekly fee.
Features
- Retirement Village
- Air Conditioning
- Deck
- Fully Fenced
Facilities
- Entertainment Area
Other
- Garden Shed
- Separate Dining Room
- New property alerts
- Save searches & properties
- Newsletter
- My property value
Join the new member centre
