SOLD
Enquire
3
2
1
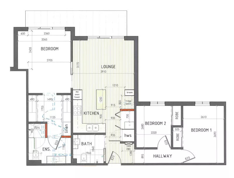
008/114 Westall Road, Springvale 3171 South East Melbourne, VIC
SOLD
Modern Makeover with Quality Finishes
Currently undergoing a complete makeover, this three-bedroom, two-bathroom apartment at Lexington Gardens will soon be beautifully refurbished to deliver stylish, low-maintenance living in a welcoming community. With quality updates, it’s perfect for those who just want to move into a home with all the hard work done and enjoy.
Some of the key highlights of this Apartment include:
• Brand-new kitchen with quality appliances and modern finishes
• Two fully renovated bathrooms, including ensuite to main bedroom
• Fresh interior décor with new paint and stylish vinyl plank flooring
• Reverse cycle air conditioning for year-round comfort
• Spacious main bedroom with built-in robe and ensuite
• Dedicated car parking space
• Located within the welcoming Lexington Gardens community
About Lexington Gardens by Keyton
At Lexington Gardens, maintain an active and connected lifestyle with resort-style amenities ranging from an indoor heated swimming pool, tennis court, bowling green, and gymnasium.
Enjoy a cuppa at the bustling café, or a wine at the resident’s bar with weekly Happy Hour. The convenience of an on-site kiosk means you don't have to travel far for the essential items.
Build new lasting friendships within a lively and welcoming community that truly feels like home. Participate in the busy social and activities calendar, with monthly dinner dances, crafts, line dancing, and more.
Or, if you enjoy a quieter lifestyle take advantage of the beautifully landscaped grounds and gardens, resident library, and dining service.
Key amenities available at Lexington Gardens include:
• Indoor heated 25m lap pool, hydro pool, and spa
• On site cafe and restaurant
• Gym facilities
• Competition standard bowling green
• Tennis/pickleball court
• Croquet court
• Workshop facilities for hobbies and DIY projects
• Village bus for shopping and outings
• Regular visits from hairdressers, barbers, and podiatrists
• Newspaper and chemist deliveries
• 24-hour emergency call system
Don’t miss this opportunity to make this home your own. Enquire today and book a tour.
Pricing, availability of services and facilities provided in the village advertised are correct at the time of listing, but subject to change without notice.
Photographs are used for illustrative purposes. Some images depict items not provided by Keyton within the units such as furniture and other decorative items.
Keyton Realty (VIC) Pty Ltd ABN 55 124 646 484 of Level 45, Bourke Place, 600 Bourke Street, Melbourne VIC 3000.
Some of the key highlights of this Apartment include:
• Brand-new kitchen with quality appliances and modern finishes
• Two fully renovated bathrooms, including ensuite to main bedroom
• Fresh interior décor with new paint and stylish vinyl plank flooring
• Reverse cycle air conditioning for year-round comfort
• Spacious main bedroom with built-in robe and ensuite
• Dedicated car parking space
• Located within the welcoming Lexington Gardens community
About Lexington Gardens by Keyton
At Lexington Gardens, maintain an active and connected lifestyle with resort-style amenities ranging from an indoor heated swimming pool, tennis court, bowling green, and gymnasium.
Enjoy a cuppa at the bustling café, or a wine at the resident’s bar with weekly Happy Hour. The convenience of an on-site kiosk means you don't have to travel far for the essential items.
Build new lasting friendships within a lively and welcoming community that truly feels like home. Participate in the busy social and activities calendar, with monthly dinner dances, crafts, line dancing, and more.
Or, if you enjoy a quieter lifestyle take advantage of the beautifully landscaped grounds and gardens, resident library, and dining service.
Key amenities available at Lexington Gardens include:
• Indoor heated 25m lap pool, hydro pool, and spa
• On site cafe and restaurant
• Gym facilities
• Competition standard bowling green
• Tennis/pickleball court
• Croquet court
• Workshop facilities for hobbies and DIY projects
• Village bus for shopping and outings
• Regular visits from hairdressers, barbers, and podiatrists
• Newspaper and chemist deliveries
• 24-hour emergency call system
Don’t miss this opportunity to make this home your own. Enquire today and book a tour.
Pricing, availability of services and facilities provided in the village advertised are correct at the time of listing, but subject to change without notice.
Photographs are used for illustrative purposes. Some images depict items not provided by Keyton within the units such as furniture and other decorative items.
Keyton Realty (VIC) Pty Ltd ABN 55 124 646 484 of Level 45, Bourke Place, 600 Bourke Street, Melbourne VIC 3000.
Property Features
Features
- Retirement Village
- Dishwasher
- Retirement Property
- Modern Kitchen
Other
- Modern appliances
- Wardrobe - built in
- Flooring - vinyl planks
- Carport
Property Location
Explore the neighborhood and see what's nearby
- New property alerts
- Save searches & properties
- Newsletter
- My property value
Join the new member centre