SOLD
Enquire

2

2

1
125/1A Stockton Street, Morisset 2264
Newcastle and Lake Macquarie, NSW
SOLD
125/1A Stockton Street, Morisset 2264, Newcastle and Lake Macquarie, NSW - Sold
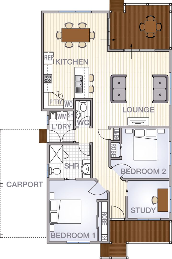
This brand new 2 bedroom, 1.5 bathroom home boasts modern finishes, study and covered entertainment deck for you to enjoy. Other features include:
- Entertainer's kitchen
- Single carport
- Open plan living
- Air conditioning to living and dining areas
- Ceiling fans to bedroom and living areas
- Built-in robes in all bedrooms
As an owner of a brand new home within Active Lifestyle Estates Lake Macquarie you can be part of an active, social and secure community with a range of lifestyle facilities available.
Active Lifestyle Estates Lake Macquarie is set on acres of lush manicured grounds and on the tranquil Stockton Creek. Within 2kms of the Morisset centre town, you will find medical services, a shopping centre, restaurants and cafes, post office and public library at your door step. Easy access to the M1 Motorway and Morisset Train Station, keeps you well connected to Newcastle, the central coast and Sydney.
Enjoy the best of everything around you with the picturesque Lake Macquarie just 5 minutes east of the village and coastal beaches are a short 15 minutes away, ideal for fishing, sailing and swimming. To the west, Watagan State Forest is a rugged wilderness of temperate rainforest, sandstone cliffs, waterfalls and eucalypt forests ready with a variety of lookouts and walking tracks to be enjoyed.
The Active Lifestyle Estates concept allows you the time to enjoy life. Our simple ownership model means you can own an affordable brand new home and pay a modest lease fee on the land. You won't have to pay stamp duty, entry or exit fees, council rates or strata/community levies.
To request an info pack or arrange a tour please contact Jason Webb (02) 4970 5769.
- Entertainer's kitchen
- Single carport
- Open plan living
- Air conditioning to living and dining areas
- Ceiling fans to bedroom and living areas
- Built-in robes in all bedrooms
As an owner of a brand new home within Active Lifestyle Estates Lake Macquarie you can be part of an active, social and secure community with a range of lifestyle facilities available.
Active Lifestyle Estates Lake Macquarie is set on acres of lush manicured grounds and on the tranquil Stockton Creek. Within 2kms of the Morisset centre town, you will find medical services, a shopping centre, restaurants and cafes, post office and public library at your door step. Easy access to the M1 Motorway and Morisset Train Station, keeps you well connected to Newcastle, the central coast and Sydney.
Enjoy the best of everything around you with the picturesque Lake Macquarie just 5 minutes east of the village and coastal beaches are a short 15 minutes away, ideal for fishing, sailing and swimming. To the west, Watagan State Forest is a rugged wilderness of temperate rainforest, sandstone cliffs, waterfalls and eucalypt forests ready with a variety of lookouts and walking tracks to be enjoyed.
The Active Lifestyle Estates concept allows you the time to enjoy life. Our simple ownership model means you can own an affordable brand new home and pay a modest lease fee on the land. You won't have to pay stamp duty, entry or exit fees, council rates or strata/community levies.
To request an info pack or arrange a tour please contact Jason Webb (02) 4970 5769.
Features
- Retirement Village
- Air Conditioning
- Retirement Property
- Study
Facilities
- Entertainment Area
- New property alerts
- Save searches & properties
- Newsletter
- My property value
Join the new member centre
