SOLD
3
2
1
80/40 Chetwynd Grove, Wollert 3750 North East Melbourne, VIC
SOLD
Modern Living with East-Facing Living Area and Backyard
Don’t miss out on this opportunity to begin your new chapter with a fresh start.
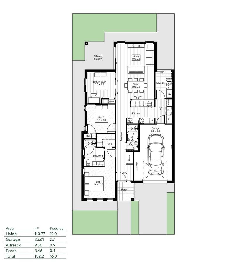
Experience spacious comfort and modern convenience in this brand-new three-bedroom, two-bathroom villa at Sherwin Rise. Designed with thoughtful features and a private master retreat, this home offers the perfect blend of style and functionality. Construction is underway, with an estimated completion in mid-2025, ready to welcome you to this vibrant and established community.
Some of the key highlights of this villa include: • Private master bedroom with ensuite and walk-in robe • Open-plan living area: kitchen, dining, and lounge • Butler’s pantry with abundant storage • Modern porcelain bench tops • Separate laundry with direct backyard access • Outdoor alfresco area for relaxing or entertaining • Single lock-up garage with storage/workspace • Contemporary finishes and design throughout • Low-maintenance lifestyle in a vibrant community
About Sherwin Rise by Keyton
An active and vibrant retirement village set in Wollert, where unparalleled convenience and low-maintenance living await. Nestled just 26km north of Melbourne CBD, this newly constructed village offers the best of independent living. All houses feature thoughtfully crafted layouts that maximise space and natural light, with a number of energy efficient and environmentally friendly inclusions that make sustainable living easy.
Complete with resort-style facilities and parklands for the family to enjoy, there is always something going on. Whether you’re looking to unwind, get active, get together, or discover something new, you will find it at Sherwin Rise retirement village
Key highlights of Sherwin Rise include: • Clubhouse & Wellness Hub featuring bowling green, pool, gym and cinema • Dedicated Health & Wellbeing Coordinator • Pet-friendly • Invigorating social events and activities • Modern and energy efficient homes with attached lock-up garages • Individual facades • 24-hour emergency call system
You must be over 55 years of age to purchase a property at this retirement village.
Don’t miss this opportunity to make this home your own. Enquire today and book a tour.
Pricing, availability of services and facilities provided in the village advertised are correct at the time of listing, but subject to change without notice.
Photographs are used for illustrative purposes. Some images depict items not provided by Keyton within the units such as furniture and other decorative items.
^T&Cs apply. *Prices as advertised are available on our non-participating (NP) contract type only. Residents do not share in any capital gain on resale of the property under a NP contract. Please refer to the full contract for details.
Keyton Realty (VIC) Pty Ltd ABN 55 124 646 484 of Level 45, Bourke Place, 600 Bourke Street, Melbourne VIC 3000.
Property Features
Features
- Pets Allowed
- Retirement Village
- Dishwasher
- Fully Fenced
Locations
- Close to Transport
- Close to Shops
- Quiet Location
Other
- Remote Garage
- Secure Parking
- Close to Schools
- Separate laundry
Property Location
Explore the neighborhood and see what's nearby
- New property alerts
- Save searches & properties
- Newsletter
- My property value
Join the new member centre