Be the first to receive the latest updates in retirement property with our newsletter
Retirement villages and properties in NSW
1113 Properties
-
-
Bayview, Northern Beaches, NSW
-
Stanhope Gardens, Blacktown, NSW
-
Bonnells Bay, Newcastle and Lake Macquarie, NSW
-
Greenwich, Lower North Shore, NSW
-
Woolgoolga, North Coast, NSW
-
Chain Valley Bay, Central Coast, NSW
-
Kincumber, Central Coast, NSW
-
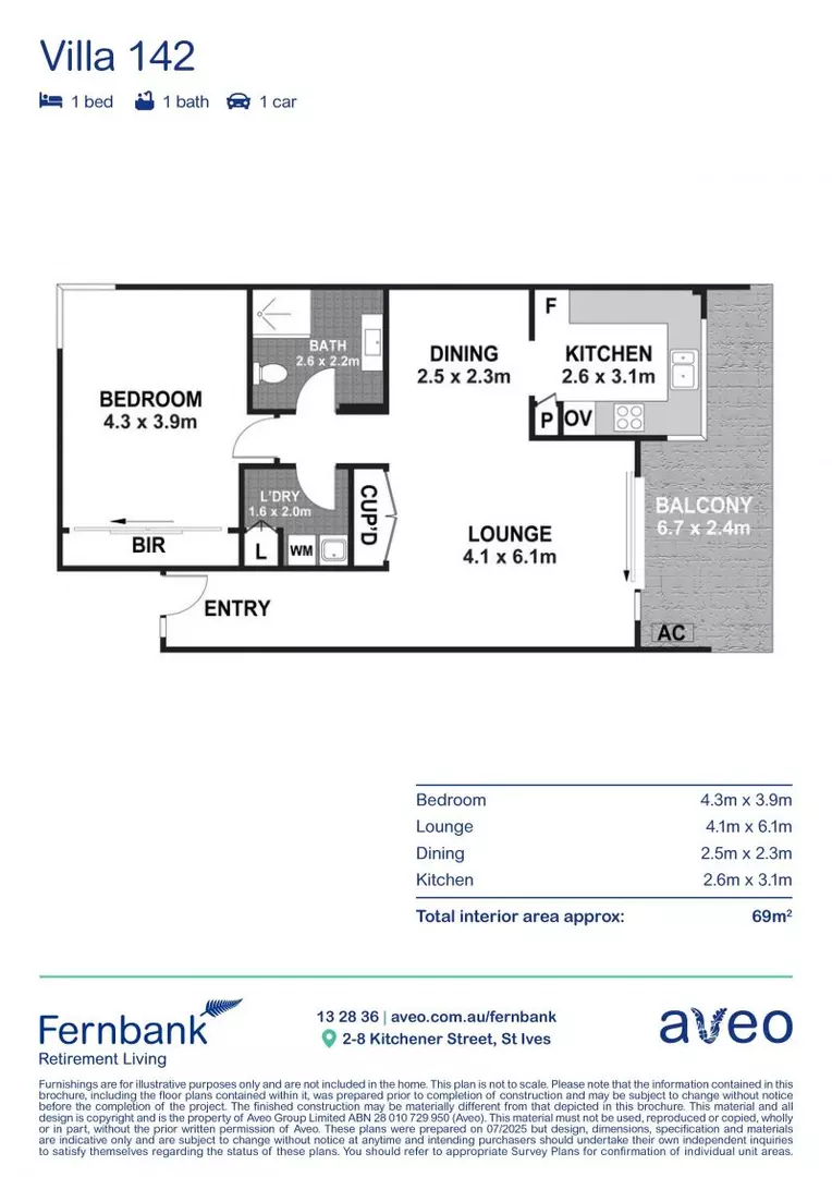
St Ives, Upper North Shore, NSW
Fully refurbished and move-in ready
142/42 Roma Road, St Ives 2075
Upper North Shore, NSW$620,000 - Retirement
-
Coffs Harbour, North Coast, NSW
-
Auburn, Parramatta, NSW
-
Heathcote, The Shire, NSW
-
Ropes Crossing, Blacktown, NSW
-
Pennant Hills, Ryde, NSW
-
Bayview, Northern Beaches, NSW
-
Casula, South West Sydney, NSW
-
Erina, Central Coast, NSW
-
Erina, Central Coast, NSW
-
Erina, Central Coast, NSW
-
Hallidays Point, Mid North Coast, NSW
-
Thrumster, Mid North Coast, NSW
-
Wyoming, Central Coast, NSW
-
Chatswood, Lower North Shore, NSW
-
Wyoming, Central Coast, NSW
-
Wyoming, Central Coast, NSW
Showing 950-975 of 1113 results